Presentatiebeeld van het pand n° 289849

In verband met dit goed

Referentie: 289849


In één van de meest exclusieve en bosrijke omgevingen van Schilde, op een uniek en volledig privé gelegen domein nabij de golf van Rinkven, bevindt zich deze charmante hoevewoning. De prachtige gevelarchitectuur, de landelijke uitstraling en de warme lichtinval doorheen de woning creëren meteen een gevoel van thuiskomen. Het U-vormige volume vormt een uitnodigend binnenplein waar u in alle geborgenheid kunt genieten van lange zomeravonden met zicht op het uitgestrekte groen.
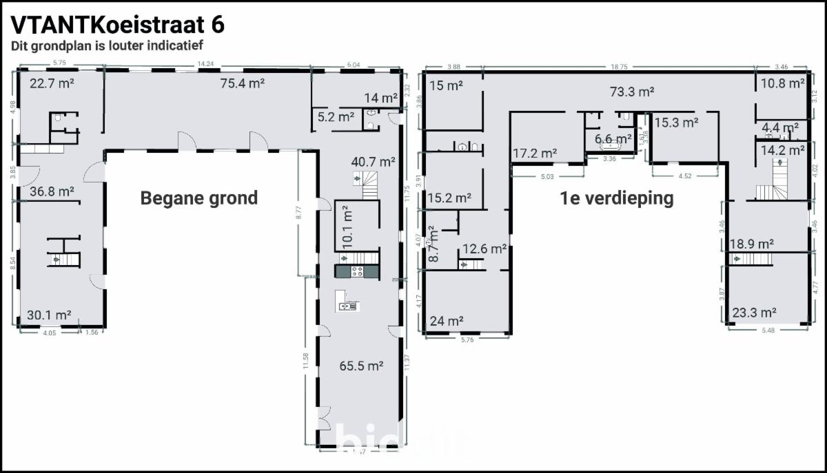
Binnenin wacht een ruime en huiselijke leefomgeving met meerdere salons, gezellige zithoeken en een royale leefkeuken die uitkijkt op de tuin. De authentieke charme blijft overal voelbaar, terwijl hedendaags comfort perfect geïntegreerd werd. Dankzij de speelse indeling op het gelijkvloers zijn diverse multifunctionele ruimtes beschikbaar voor wie graag een bureau, hobbyruimte of praktijk aan huis voorziet.
Op de verdieping bevinden zich talrijke ruime slaapkamers en badkamers, ideaal voor een groot gezin of voor wie graag gasten ontvangt. Ook kangoeroewonen behoort tot de mogelijkheden, zonder in te boeten aan comfort of privacy.
Het groene domein rondom de woning vormt een absolute troef: een perfect onderhouden parktuin, volgroeide bomen en geen inkijk van omwonenden zorgen voor een zeldzame rustbeleving. Toch geniet u hier van een uitstekende bereikbaarheid en alle voorzieningen in de nabijheid.
Deze unieke hoeve in Schilde combineert de charme van vroeger met de luxe, ruimte en rust van vandaag. Een uitzonderlijke kans voor wie droomt van exclusief wonen in het groen — met karakter, privacy en een warm familiegevoel.
BEZOEK: elke dinsdag van 14u30-16u30 en elke zaterdag van 10u-12u vanaf dinsdag 18/11 tem dinsdag 16/12. G score: B P score: B

Algemene informatie

  • Vrij vanafBij de akte
  • Gebouw1941
  • PandtypeHuizen
  • verdieping(en)2
  • Kadastraal inkomen6.217 €

Samenstelling

  • 6 slaapkamers
  • 3 badkamers
  • 5 WC
  • Kantoor
  • Woonkamer

Bijkomende informatie

  • StaatGoed
  • Type verwarmingMazout

Gebouw en tuin gegevens

  • Tuin
  • Oppervlakte kadaster19558m2

Energiegegevens

  • Energiescore (kengetal) van het EPC115 kWh/m2
  • RF-Energie labelB
  • Unieke code van het EPC-certificaat20231228-0003090706-RES-2

Stedelijke informatie

  • Stedenbouwkundige vergunning
  • De meest recente stedelijke bestemming van het pand met de benamingen gebruikt in het register met plannenruimtelijk kwetsbaar gebied en cluster golf

Documenten en bijlagen

Online verkoop

Doe een bod van

1.400.000 €

Verkoop informatie

Logo van partner Biddit

Startdatum: 10/12/2025 11:00

Einddatum: 18/12/2025 11:00

Geen bod: 10.000 €

De fiche bekijken op Biddit.be

Verkocht door de notaris CELIS & LIESSE

Bezoekgegevens

elke dinsdag van 14u30-16u30 en elke zaterdag van 10u-12u vanaf dinsdag 18/11 tem dinsdag 16/12.

Virtueel bezoek

Ontdek het vastgoed tijdens een virtueel bezoek

Nu bezoeken