Presentatiebeeld van het pand n° 292888

In verband met dit goed

Referentie: 292888


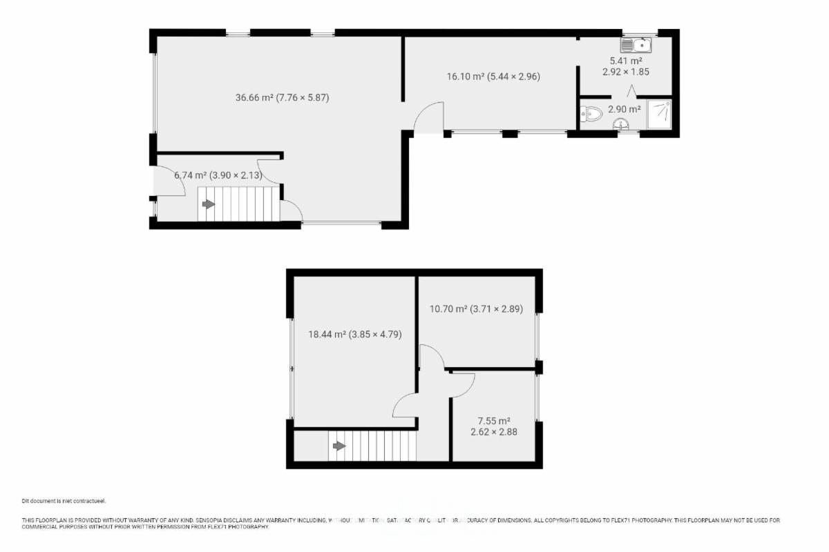
Indeling:
- gelijkvloers: inkomhal met trap, eet- en woonruimte, leefruimte, keuken, badkamer.
- 1e verdieping: 3 slaapkamers.
Garage en bijgebouwen.

De eigenaars verklaren geen kennis te hebben van enige erfdienstbaarheid.

De eigenaars van het achterliggend perceel menen evenwel dat er een servitude bestaat lastens het verkochte goed, via dewelke zij hun achterliggend perceel kunnen bereiken.
De kopers zullen hier hun eigen zaak van maken.

Kadastraal nummer 310A3.

EPC label F. P-score A / G-score A. G score: A P score: A

Algemene informatie

  • Vrij vanafBij de akte
  • Gebouw1957
  • PandtypeHuizen
  • verdieping(en)1
  • Oppervlakte van het woongedeelte134m2
  • Kadastraal inkomen433 €
  • Aantal gevels4

Samenstelling

  • 3 slaapkamers
  • 1 badkamer
  • 1 WC
  • Eetkamer
  • Woonkamer

Bijkomende informatie

  • StaatTe renoveren
  • Type verwarmingMazout
  • Aantal parkeerplaatsen binnen1

Gebouw en tuin gegevens

  • Tuin
  • Oppervlakte kadaster784m2

Energiegegevens

  • Energiescore (kengetal) van het EPC1.080 kWh/m2
  • RF-Energie labelF De wettelijke verplichting tot renovatie is mogelijks van toepassing op dit goed.
  • Unieke code van het EPC-certificaat20230405-0002858171-RES-1

Stedelijke informatie

  • De meest recente stedelijke bestemming van het pand met de benamingen gebruikt in het register met plannenWoongebied

Online verkoop

Doe een bod van

175.000 €

Verkoop informatie

Logo van partner Biddit

Startdatum: 16/03/2026 13:00

Einddatum: 24/03/2026 13:00

Geen bod: 1.000 €

De fiche bekijken op Biddit.be

Verkocht door de notaris Benijts & Colson, notarissen

Bezoekgegevens

Op zaterdag 21 februari, 28 februari, 7 maart, 14 maart, 21 maart van 10u-12u

Virtueel bezoek

Ontdek het vastgoed tijdens een virtueel bezoek

Nu bezoeken