Presentatiebeeld van het pand n° 291052

In verband met dit goed

Referentie: 291052


Immeuble de rapport de caractère situé à Verviers, Rue du Bosquet, 14
Situé sur les hauteurs de Verviers, dans un quartier apprécié pour son calme et sa proximité de toutes commodités, cet imposant immeuble de rapport de type "maison de maître" offre une superficie habitable d’environ 450 m² et de beaux volumes, de belles hauteurs sous plafond, des éléments architecturaux d’époque ainsi qu'un important potentiel d’aménagement.
Composition du bien :
- Au rez-de-chaussée : deux garages, une cave et un vaste espace extérieur ;
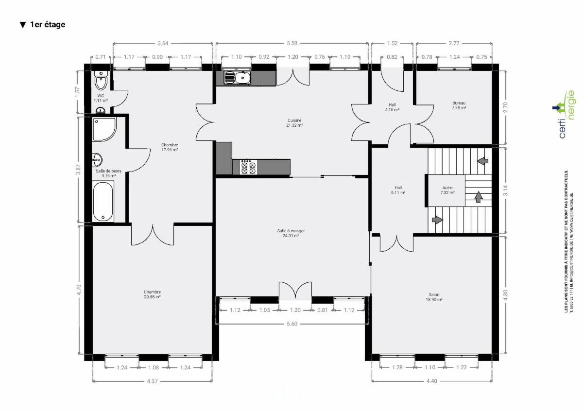
- Au premier étage : trois grandes pièces, une cuisine, une salle d’eau avec accès au jardin, une salle de bain avec baignoire et WC ainsi que de caves ;
- Au deuxième étage : un hall, un salon, une cuisine non équipée, cinq chambres, une véranda donnant sur un vaste espace extérieur, un WC et une salle de bain avec douche, baignoire et évier ;
- Au troisième étage : deux WC, dont un sur palier, deux salles de bain, dont une avec baignoire et l’autre avec chaudière et cinq chambres.
Remarques importante : Une rénovation complète, tant au niveau structurel que technique, ainsi qu’une régularisation urbanistique sont à prévoir.
4 chaudières gaz.
Châssis bois simple vitrage.
3 certificats PEB: F; D et F.
Electricité non conforme.

Algemene informatie

  • Opbrengsteigendom
  • Vrij vanafBij de akte
  • PandtypeHuizen
  • Kadastraal inkomen1.593 €
  • Aantal gevels4

Samenstelling

  • 12 slaapkamers
  • 4 badkamers
  • 3 WC
  • Zolder
  • Kelder
  • Veranda
  • Ingerichte keuken
  • Aantal wooneenheden2

Bijkomende informatie

  • StaatTe renoveren
  • Type verwarmingGas

Gebouw en tuin gegevens

  • Tuin
  • Oppervlakte kadaster1181m2

Energiegegevens

  • Energie labelEnergielabel van het pand
  • Conformiteitsattest van de elektrische installatieJa, niet gelijkvorming
  • Unieke code van het EPC-certificaat20241105018214
  • Primair specifiek energieverbruik450 kWh/m2/an
  • Primair theoretisch energieverbruik40.759 kWh/an
  • Andere opmerkingenCertificat PEB pour le 2ème étage: Indice de performance du PEB: D - Code unique du certificat PEB: 20241105018321 - Consommation spécifique d'énergie primaire en kWh/m²/an: 302 - Consommation théorique totale d'énergie primaire en kWh/an: 48.569 ; Certificat PEB pour le 3ème étage: Indice de performance du PEB: F - Code unique du certificat PEB: 20241105018482 - Consommation spécifique d'énergie primaire en KWh/m²/an: 454 - Consommation théorique totale d'énergie primaire en kWh/an: 68.793.

Stedelijke informatie

  • Stedenbouwkundige overtreding
  • Meest recente stedenbouwkundige bestemmingWoongebied

Naam van de voorkooprechthebbende overheid (bij prioriteit)

  • Ingeschreven op de bewaar- of beschermingslijst erfgoedNeen

Online verkoop

Doe een bod van

150.000 €

Verkoop informatie

Afgesloten verkoop
Logo van partner Biddit

Startdatum: 21/01/2026 15:00

Einddatum: 29/01/2026 15:00

Geen bod: 1.000 €

De fiche bekijken op Biddit.be

Verkocht door de notaris Renaud CHAUVIN & Baudouin TRISTANT - Société notariale

Bezoekgegevens

Sur rendez-vous avec l'Etude au 087/33.04.60