Presentatiebeeld van het pand n° 288483

In verband met dit goed

Referentie: 288483


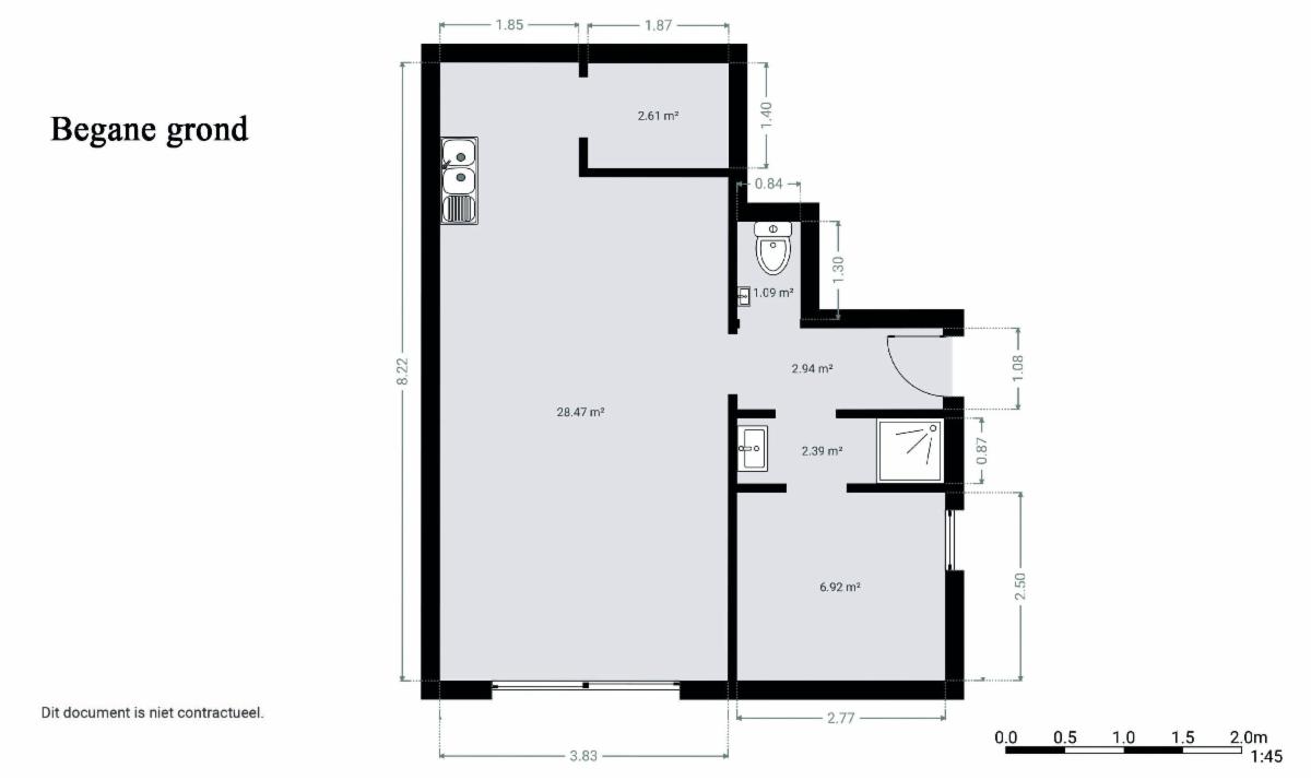
Dit recent opgerichte éénslaapkamerappartement is volledig instapklaar en gelegen op de gelijkvloerse verdieping.

Het beschikt over een inkomhal, apart toilet, één slaapkamer, badkamer met douche en lavabo, bergruimte/wasruimte, en een lichtrijke open leefruimte met geïnstalleerde keuken, eethoek en zithoek.
Vooraan het appartement is er een gezellig terras te vinden, en in de kelder is er tevens een kelderberging inbegrepen.

Het is gelegen in de buurt van winkels, scholen en recreatiemogelijkheden.
Er is een goede verbinding tussen Bilzen-centrum en Tongeren.
In slechts enkele minuten rijdt u de autosnelweg op.
G score: D P score: D

Algemene informatie

  • Vrij vanafBij de akte
  • Gebouw2009
  • PandtypeAppartementen
  • Kadastraal inkomen583 €

Samenstelling

  • 1 slaapkamer
  • 1 badkamer
  • 1 WC
  • Kelder
  • Ingerichte keuken
  • Washok
  • Woonkamer

Bijkomende informatie

  • Terras
  • OmgevingResidentieel
  • StaatUitstekend
  • Type verwarmingGas

Gebouw en tuin gegevens

  • Oppervlakte kadaster3593m2

Faciliteit gegevens

  • Nabijgelegen winkels
  • Scholen
  • Autoweg

Energiegegevens

  • Energiescore (kengetal) van het EPC130 kWh/m2
  • RF-Energie labelB
  • Unieke code van het EPC-certificaat20250813-0003663983-RES-1

Stedelijke informatie

  • Stedenbouwkundige vergunning
  • De meest recente stedelijke bestemming van het pand met de benamingen gebruikt in het register met plannenWoongebied

Uit de hand te koop

Gewenste prijs

188.000 €

Verkocht door de notaris NOTARIS XAVIER VOETS

Heeft u een vraag over dit pand of wenst u een bezoek in te plannen? Neem contact op met de notaris van de verkoper.

Virtueel bezoek

Ontdek het vastgoed tijdens een virtueel bezoek

Nu bezoeken