Presentatiebeeld van het pand n° 292878

In verband met dit goed

Referentie: 292878


Gunstig gelegen. Momenteel opgedeeld in 3 wooneenheden, doch slechts vergund voor 2 wooneenheden. G score: C P score: C

Algemene informatie

  • Vrij vanafBij de akte
  • Gebouw1959
  • PandtypeHuizen
  • verdieping(en)3
  • Kadastraal inkomen1.048 €
  • Aantal gevels3

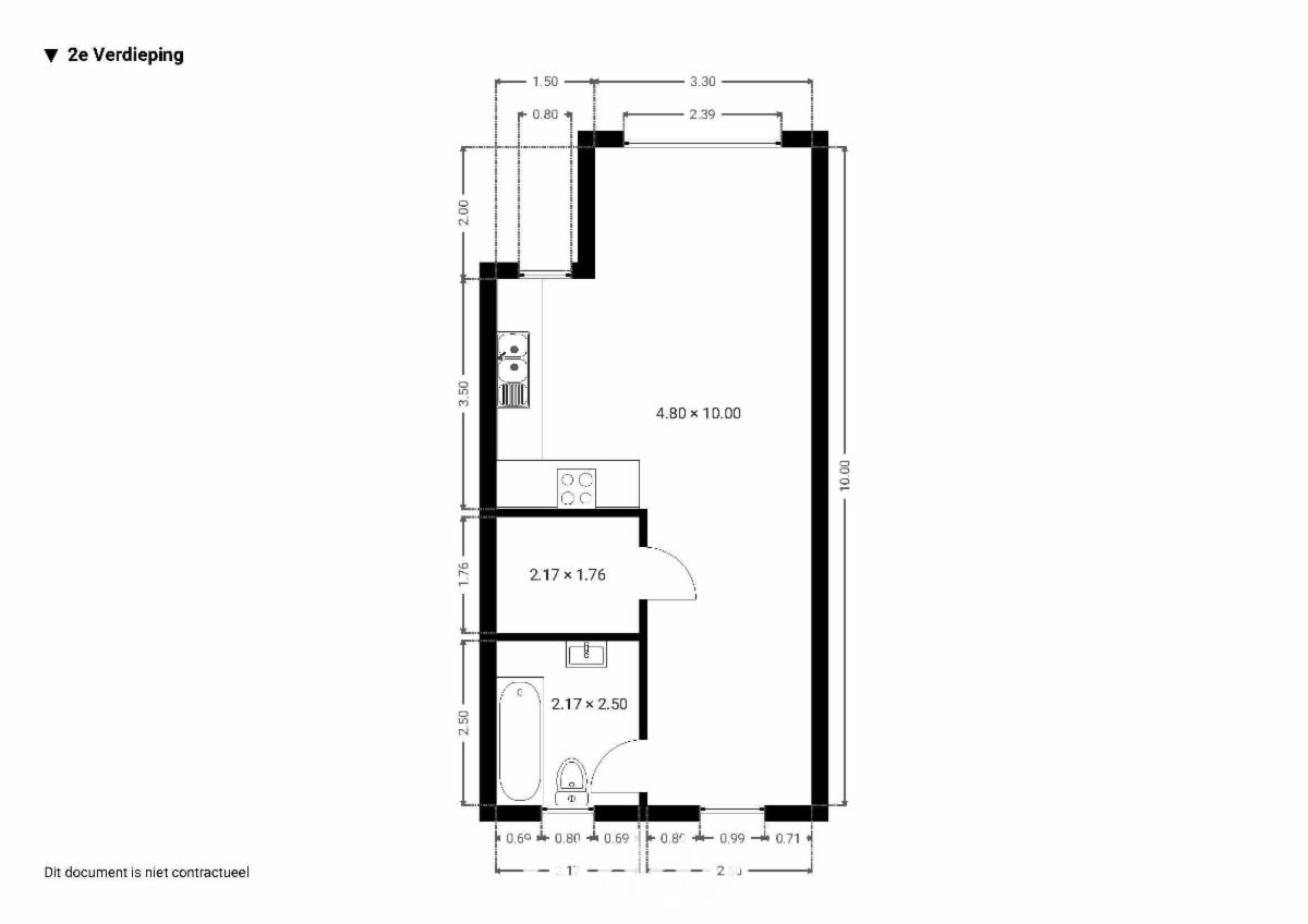
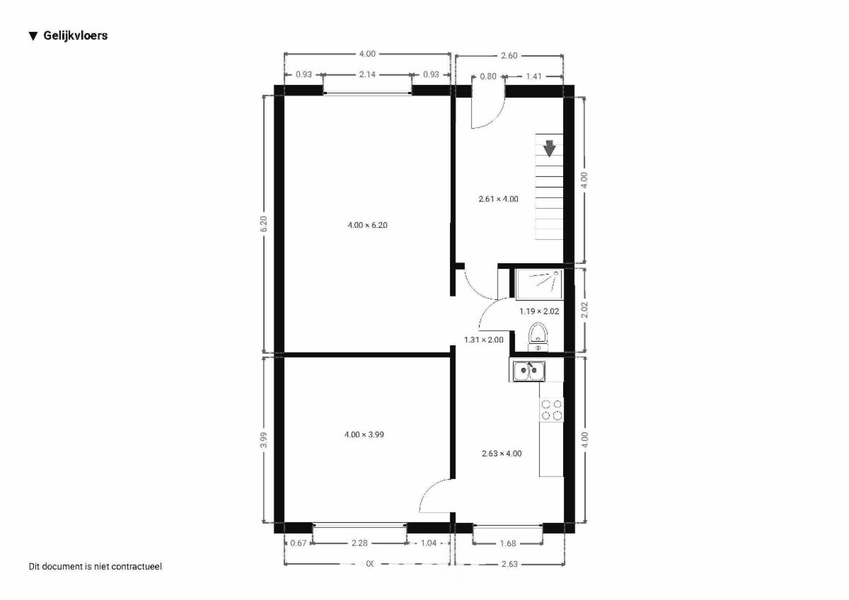
Samenstelling

  • 3 slaapkamers
  • 3 badkamers
  • 3 WC

Gebouw en tuin gegevens

  • Oppervlakte kadaster118m2

Energiegegevens

  • Energiescore (kengetal) van het EPC419 kWh/m2
  • RF-Energie labelE De wettelijke verplichting tot renovatie is mogelijks van toepassing op dit goed.
  • Unieke code van het EPC-certificaat20251223-0003757029--1

Stedelijke informatie

  • De meest recente stedelijke bestemming van het pand met de benamingen gebruikt in het register met plannenWoongebied

Online verkoop

Doe een bod van

215.000 €

Verkoop informatie

Logo van partner Biddit

Startdatum: 18/03/2026 11:00

Einddatum: 26/03/2026 11:00

Geen bod: 1.000 €

De fiche bekijken op Biddit.be

Verkocht door de notaris CELIS & LIESSE

Bezoekgegevens

op zaterdag 21/2, 28/2, 7/3, 14/3, 21/3 van 14u-16u en woensdag 4/3, 11/3, 18/3, 25/3 van 9u30-11u30.

Virtueel bezoek

Ontdek het vastgoed tijdens een virtueel bezoek

Nu bezoeken