Presentatiebeeld van het pand n° 289520

In verband met dit goed

Referentie: 289520


- Kadastraal: 1e afdeling, sectie B, nummer 0312HP0000;
- Perceeloppervlakte: 9a 02ca;
- Kadastraal inkomen: 902 euro;
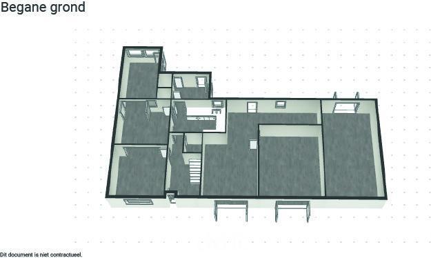
- 4 slaapkamers;
- 1 badkamer;
- zolder met vaste trap;
- garage/schuur;
- tuinberging.

Informatieverplichting: Geen vergunning afgeleverd - Geen dagvaarding - Geen voorkooprecht - Geen verkavelingsvergunning - Woongebied met landelijk karakter - EPC: label F - renovatieplicht - niet gelegen in overstromingsgevoelig gebied/afgebakend overstromingsgebied/oeverzone - P-score: A - G-score: A - WGO: neen. G score: A P score: A

Algemene informatie

  • Vrij vanafBij de akte
  • Gebouw1958
  • PandtypeHuizen
  • verdieping(en)4
  • Kadastraal inkomen902 €
  • Aantal gevels3

Samenstelling

  • 4 slaapkamers
  • 1 badkamer
  • 1 WC
  • Zolder
  • Zolder toegankelijk via vaste trap

Bijkomende informatie

  • OmgevingResidentieel
  • StaatTe renoveren
  • Type verwarmingMazout
  • Aantal parkeerplaatsen binnen1

Gebouw en tuin gegevens

  • Oppervlakte kadaster902m2

Energiegegevens

  • Energiescore (kengetal) van het EPC590 kWh/m2
  • RF-Energie labelF De wettelijke verplichting tot renovatie is mogelijks van toepassing op dit goed.
  • Unieke code van het EPC-certificaat20250422-0003583289-RES-1

Stedelijke informatie

  • De meest recente stedelijke bestemming van het pand met de benamingen gebruikt in het register met plannenWoongebied met landelijk karakter

Online verkoop

Doe een bod van

125.000 €

Verkoop informatie

Afgesloten verkoop
Logo van partner Biddit

Startdatum: 02/12/2025 11:00

Einddatum: 10/12/2025 11:00

Geen bod: 1.000 €

De fiche bekijken op Biddit.be

Verkocht door de notaris Notaris Bart VAN DER MEERSCH

Bezoekgegevens

Zaterdag 22 en 29 november 2025 en 6 december 2025, telkens van 9u30-11u30

Virtueel bezoek

Ontdek het vastgoed tijdens een virtueel bezoek

Nu bezoeken