Presentatiebeeld van het pand n° 290372

In verband met dit goed

Referentie: 290372


In een woon- en opbrengsthuis gelegen Brugmannlaan 47
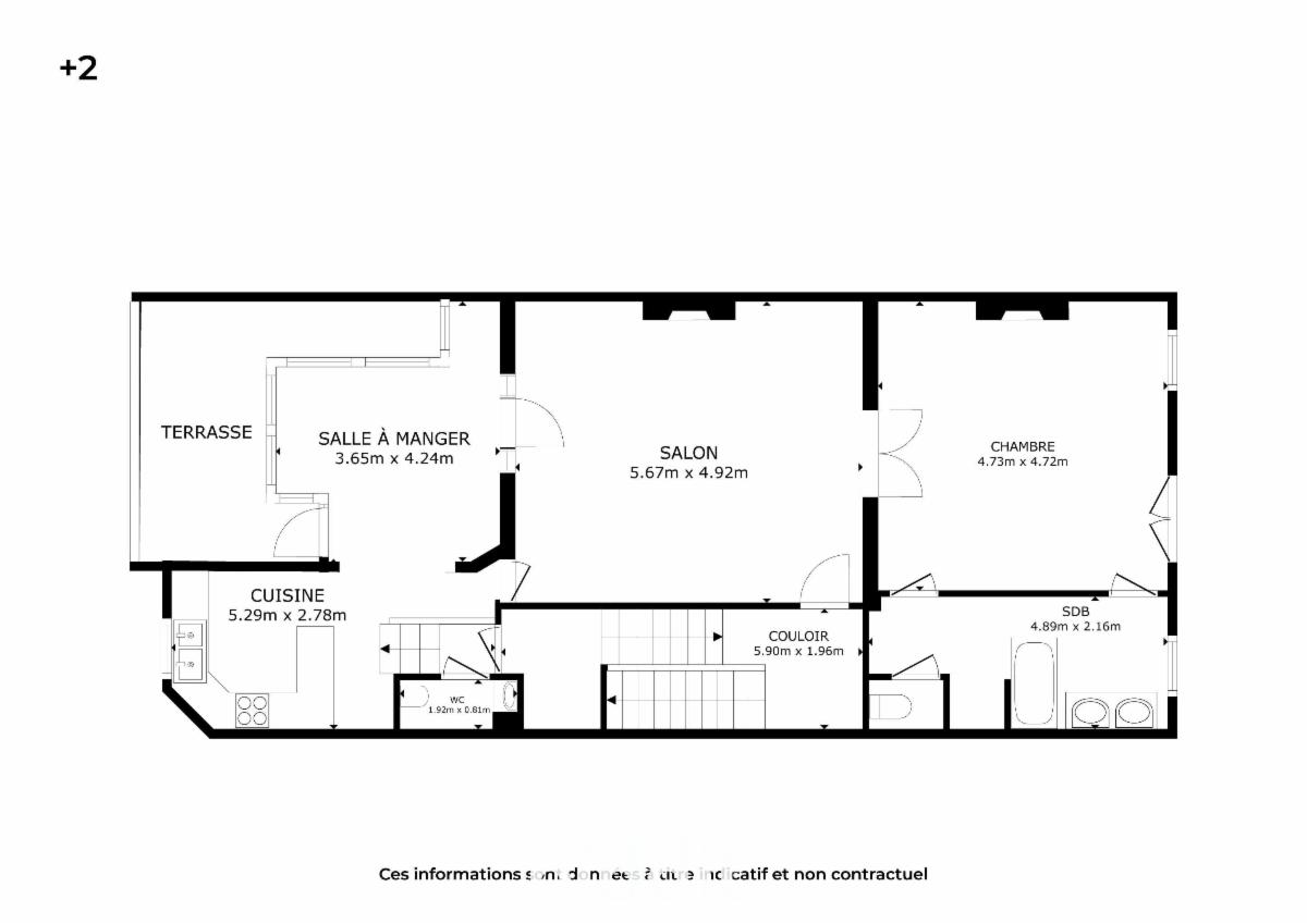
Lot 3 : Het dubbel appartement op 2e, 3e en 4e verd.
Omvattende op 2e verd.: salon, veranda-eetkamer, terras, keuken, wc, 1 slaapkamer, badkamer met wc - op tussenverd. en 3e verd.: salon met trap naar 4e verd., eetkamer met open keuken, wc - op 4e verd.: 1 slaapkamer, dressing, hall, badkamer alsook de traphal naar de 3e verd. N.g.k.i. 1.339€. Verhuurd (vrij op 1/4/2026). Gemengd gebied, GCHEWS, in structurerende ruimte. Sted. overtredingen te regulariseren door de koper. EPC G/434 (2e verd.), F/291 (3e en 4e verd.). Contr. elektr. niet conform. Bezoeken : dinsdagen 21-28/4, 5/5 van 14-16u en zaterdagen 25/4, 2-9/5 van 13-15u. Voor elke bezoekaanvraag, stuur “BRUGMANN 47” naar 0472/890.178. Er zal vervolgens een link worden doorgestuurd om een bezoekmoment te reserveren.
Begin biedingen : donderdag 07.05.26 om 10u -
Einde biedingen : vrijdag 15.05.26 om 10u -
Instelprijs : 320.000€ -
Bodverhoging : 1.000€ -
Ondertekening akte : vrijdag 22.05.26 om 11u -
www.biddit.be - Ref. pand: 290372.

Algemene informatie

  • Vrij op01/04/2026
  • PandtypeAppartementen
  • Kadastraal inkomen1.339 €

Samenstelling

  • 2 slaapkamers
  • 2 badkamers
  • 2 WC
  • Veranda
  • Dressing
  • Ingerichte keuken
  • Eetkamer
  • Woonkamer

Bijkomende informatie

  • Terras
  • Verdieping van het goed2

Energiegegevens

  • Andere opmerkingenGemengd gebied, GCHEWS, in structurerende ruimte. Sted. overtredingen te regulariseren door de koper. EPC G/434 (2e verd.), F/291 (3e en 4e verd.).

Stedelijke informatie

  • Meest recente en meest nauwkeurige wettelijke stedenbouwkundige bestemmingGemengde Gebieden

Online verkoop

Doe een bod van

320.000 €

Verkoop informatie

Logo van partner Biddit

Startdatum: 07/05/2026 10:00

Einddatum: 15/05/2026 10:00

Geen bod: 1.000 €

De fiche bekijken op Biddit.be

Verkocht door de notaris Jean MARTROYE de JOLY & Quentin DE RUYDTS, Notaires associés

Bezoekgegevens

dinsdagen 21-28/4, 5/5 van 14-16u en zaterdagen 25/4, 2-9/5 van 13-15u. Voor elke bezoekaanvraag, stuur “BRUGMANN 47” naar 0472/890.178. Er zal vervolgens een link worden doorgestuurd om een bezoekmoment te reserveren.

Virtueel bezoek

Ontdek het vastgoed tijdens een virtueel bezoek

Nu bezoeken