Presentatiebeeld van het pand n° 290852

In verband met dit goed

Referentie: 290852


Goed bereikbaar.
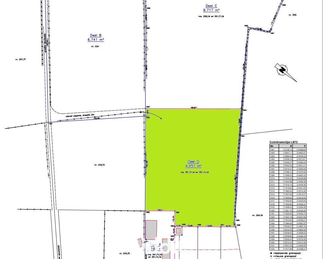
Zijnde Deel D van het plan.
Lwag, Gvg, Gmo, Gvkr, Gvv.
BEZOEK: Vrij te bezichtigen - op eigen risico P score: A

Algemene informatie

  • Vrij vanafBij de akte
  • PandtypeGronden

Gebouw en tuin gegevens

  • Oppervlakte kadaster4451m2

Financiële gegevens

  • Kadastraal inkomen te bepalen

Stedelijke informatie

  • De meest recente stedelijke bestemming van het pand met de benamingen gebruikt in het register met plannenLandschappelijk waardevol agrarisch gebied

Documenten en bijlagen

Online verkoop

Doe een bod van

35.000 €

Verkoop informatie

Afgesloten verkoop
Logo van partner Biddit

Startdatum: 13/01/2026 15:00

Einddatum: 21/01/2026 15:00

Geen bod: 1.000 €

De fiche bekijken op Biddit.be

Verkocht door de notaris Michoel, Bremans & Hens, notarissen

Bezoekgegevens

Vrij te bezichtigen - op eigen risico

Infosessie

dinsdag 06/01/2016 - 17u