Presentatiebeeld van het pand n° 290014

In verband met dit goed

Referentie: 290014


Maison familiale lumineuse, composée de :

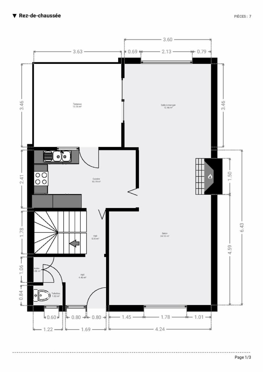
Au rez-de-chaussée : un hall d’entrée, un vaste séjour lumineux avec salon et salle à manger, ouvrant sur une agréable terrasse extérieure. Une cuisine fonctionnelle, ainsi qu'un WC séparé.

À l’étage : trois chambres, dont une offrant une belle vue, ainsi qu’une salle de bain.

Grenier de rangement accessible par un escalier escamotable.

Au sous-sol : plusieurs caves, une chaufferie, et un garage équipé d’une porte électrique.

À l’extérieur : un beau jardin bien entretenu, surplombant le village.

Un cadre de vie agréable grâce à de beaux volumes et une luminosité optimale.

Algemene informatie

  • Vrij vanafBij de akte
  • Gebouw1973
  • PandtypeHuizen
  • Kadastraal inkomen640 €
  • Aantal gevels3

Samenstelling

  • 3 slaapkamers
  • 1 badkamer

Bijkomende informatie

  • OmgevingLandelijk
  • StaatOp te frissen
  • Type verwarmingMazout

Gebouw en tuin gegevens

  • Oppervlakte kadaster492m2

Energiegegevens

  • Centrale verwarming
  • Dubbele beglazing
  • Stookolie-, gas- of andere tank
  • Energie labelEnergielabel van het pand
  • Conformiteitsattest van de elektrische installatieJa, niet gelijkvorming
  • Unieke code van het EPC-certificaat20251128005164
  • Primair specifiek energieverbruik329 kWh/m2/an
  • Primair theoretisch energieverbruik40.895 kWh/an

Stedelijke informatie

  • Verkoop onderworpen aan toelating
  • Meest recente stedenbouwkundige bestemmingWoongebied met landelijk karakter
  • Verkoop onderworpen aan machtiging (verduidelijking)Juge de paix

Naam van de voorkooprechthebbende overheid (bij prioriteit)

  • Ingeschreven op de bewaar- of beschermingslijst erfgoedNeen

Uit de hand te koop

Gewenste prijs

240.000 €

Verkocht door de notaris Florence MOREAU, Notaire

Heeft u een vraag over dit pand of wenst u een bezoek in te plannen? Neem contact op met de notaris van de verkoper.

Bezoekgegevens

Prendre RDV en l'Etude par mail a.raty@notairemoreau.be ou par téléphone 063.21.00.86

Virtueel bezoek

Ontdek het vastgoed tijdens een virtueel bezoek

Nu bezoeken