Presentatiebeeld van het pand n° 289617

In verband met dit goed

Referentie: 289617



Une maison de maître, offrant de nombreuses possibilités d’aménagement, située Place de Bronckart, 11, à Liège, d’une superficie habitable d’environ 520 m² (superficie PEB) se composant comme suit :
• Au rez-de-chaussée : un hall d’entrée, un salon d’environ 28 m², un living d’environ 32 m², une salle à manger très lumineuse d’environ 35 m², une cuisine, une arrière cuisine, une buanderie, un wc et un jardin.
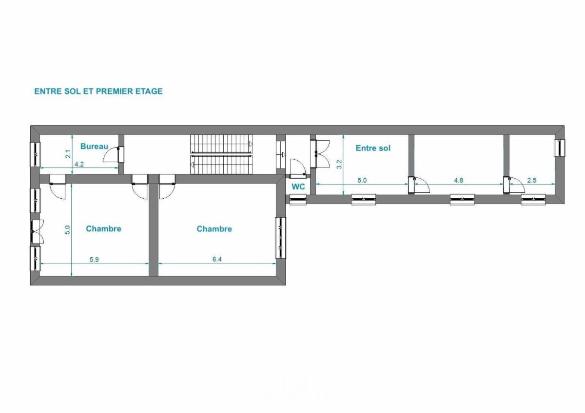
• A l’entre sol : un wc et trois pièces en enfilade d’environ 16 m², 15 m² et 8 m².
• Au premier étage : une chambre d’environ 32 m², une chambre avec balcon d’environ 29 m² et un bureau d’environ 10 m².
• Au deuxième étage : deux chambres d’environ 32m² et 29 m² et une salle de bain d’environ 11 m².
• Au troisième étage : un grenier d’environ 30 m² et 3 pièces d’environ 11 m², 12 m² et 14 m².
• Au sous-sol : quatre caves.
Un emplacement de garage (5m x 2,40m) situé Rue de Chestret, 22 (Résidence "Parking de Chestret").
Caractéristiques : hauts plafonds, parquets en bois massif, moulures élégantes, cheminées d’époque.
Situation : dans le quartier dynamique des Guillemins, à proximité de nombreux commerces, d’écoles et de transports en commun.
Revenu cadastral : 2.627,00 € en ce qui concerne la maison et 89,00 € en ce qui concerne l'emplacement de garage.

Algemene informatie

  • Vrij vanafBij de akte
  • Gebouw1899
  • PandtypeHuizen
  • verdieping(en)3
  • Oppervlakte van het woongedeelte520m2
  • Kadastraal inkomen2.716 €
  • Aantal gevels2

Samenstelling

  • 4 slaapkamers
  • 1 badkamer
  • Zolder
  • Kelder
  • Ingerichte keuken
  • Kantoor
  • Eetkamer
  • Woonkamer
  • Zolder toegankelijk via vaste trap
  • Oppervlakte slaapkamer 132m2
  • Oppervlakte slaapkamer 229m2
  • Oppervlakte slaapkamer 332m2
  • Oppervlakte slaapkamer 429m2

Bijkomende informatie

  • StaatTe renoveren
  • Type verwarmingGas

Gebouw en tuin gegevens

  • Tuin
  • Oppervlakte kadaster288m2

Faciliteit gegevens

  • Nabijgelegen bus
  • Nabijgelegen tram
  • Nabijgelegen trein/station
  • Nabijgelegen winkels
  • Scholen
  • Autoweg

Energiegegevens

  • Aansluiting aan de riolering
  • Energie labelEnergielabel van het pand
  • Unieke code van het EPC-certificaat20250918031257
  • Primair specifiek energieverbruik321 kWh/m2/an
  • Primair theoretisch energieverbruik167.193 kWh/an

Stedelijke informatie

  • Meest recente stedenbouwkundige bestemmingWoongebied

Naam van de voorkooprechthebbende overheid (bij prioriteit)

  • Procedure bescherming van het erfgoed
  • Ingeschreven op de bewaar- of beschermingslijst erfgoedJa

Documenten en bijlagen

Online verkoop

Doe een bod van

300.000 €

Verkoop informatie

Afgesloten verkoop
Logo van partner Biddit

Startdatum: 01/12/2025 11:00

Einddatum: 09/12/2025 11:00

Geen bod: 1.000 €

De fiche bekijken op Biddit.be

Verkocht door de notaris Michel HUBIN, notaire

Bezoekgegevens

Prendre contact avec l'Etude du Notaire HUBIN au 04/223.66.36

Infosessie

Prendre contact avec l'Etude du Notaire HUBIN au 04/223.66.36