Presentatiebeeld van het pand n° 288555

In verband met dit goed

Referentie: 288555


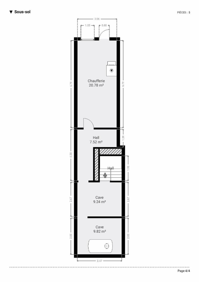
!!! SOUS OPTION !!! Située au centre de Trois-Ponts, maison unifamiliale 2 façades disposant en son rez-de-chaussée d'une pièce en façade pouvant convenir pour une chambre ou un petit séjour, une salle de bains et une grande pièce pouvant accueillir une cuisine et une salle à manger. Le premier étage offre un hall et deux chambres ou une chambre et un bureau. Le second niveau offre une salle de douche et une chambre à coucher. Présence de caves en sous-sol, chaufferie et accès au jardin. Le bien dispose d'un jardin offrant un accès à un petit cours d'eau.

Algemene informatie

  • Vrij vanafBij de akte
  • PandtypeHuizen
  • verdieping(en)4
  • Oppervlakte van het woongedeelte130m2
  • Kadastraal inkomen381 €
  • Aantal gevels2

Samenstelling

  • 3 slaapkamers
  • 1 badkamer
  • 1 douchekamer
  • Ingerichte keuken
  • Woonkamer
  • Aantal wooneenheden1

Bijkomende informatie

  • Teledistributie
  • Type verwarmingMazout
  • Gevelbreedte straatkant4m

Gebouw en tuin gegevens

  • Tuin
  • Vlakke grond
  • Oppervlakte kadaster126m2
  • Oppervlakte tuin60m2

Faciliteit gegevens

  • Nabijgelegen trein/station
  • Scholen
  • Afstand tot school266m
  • Afstand tot treinstation418m

Energiegegevens

  • Centrale verwarming
  • Stookolie-, gas- of andere tank
  • Energie labelEnergielabel van het pand
  • Unieke code van het EPC-certificaat20250709034368
  • Primair specifiek energieverbruik395 kWh/m2/an
  • Primair theoretisch energieverbruik51.130 kWh/an
  • Conformiteitsattest van de stookolietankNeen, want niet nodig

Stedelijke informatie

  • Meest recente stedenbouwkundige bestemmingWoongebied

Naam van de voorkooprechthebbende overheid (bij prioriteit)

  • Ingeschreven op de bewaar- of beschermingslijst erfgoedNeen

Uit de hand te koop

Gewenste prijs

118.000 €

Verkocht door de notaris Pierre COTTIN & Caroline MONSEUR - Société Notariale

Heeft u een vraag over dit pand of wenst u een bezoek in te plannen? Neem contact op met de notaris van de verkoper.