Presentatiebeeld van het pand n° 290595

In verband met dit goed

Referentie: 290595


Op uitstekende locatie.
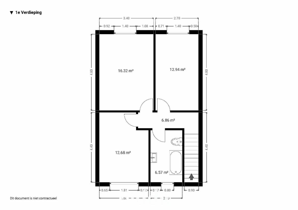
Met 3 slaapkamers, 1 badkamer, 2 toiletten, ingebouwde garage en ruime tuin.
Wg, Vg, Gmo, Gvkr, Gvv.
BEZOEK: elke dinsdag van 10u-12u en elke zaterdag van 12u-14u vanaf dinsdag 16/12 tem zaterdag 17/1/2026. G score: C P score: C

Algemene informatie

  • Vrij vanafBij de akte
  • PandtypeHuizen
  • verdieping(en)2
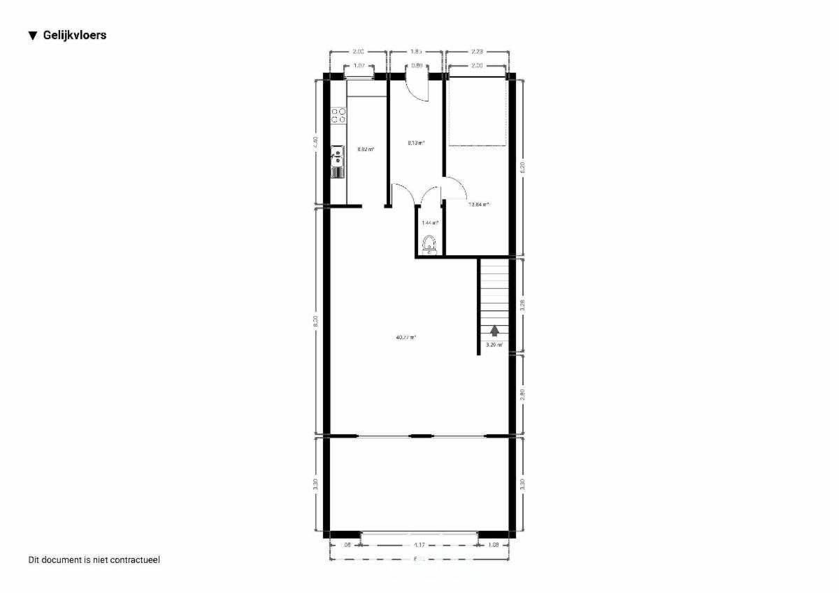
  • Oppervlakte van het woongedeelte120m2
  • Kadastraal inkomen1.284 €
  • Aantal gevels2

Samenstelling

  • 3 slaapkamers
  • 1 badkamer
  • 2 WC

Bijkomende informatie

  • StaatOp te frissen
  • Type verwarmingGas
  • Aantal parkeerplaatsen binnen1

Gebouw en tuin gegevens

  • Tuin
  • Oppervlakte kadaster190m2

Energiegegevens

  • Energiescore (kengetal) van het EPC287 kWh/m2
  • RF-Energie labelC
  • Unieke code van het EPC-certificaat20250630-0003637385-RES-1

Stedelijke informatie

  • Stedenbouwkundige vergunning
  • De meest recente stedelijke bestemming van het pand met de benamingen gebruikt in het register met plannenWoongebied

Online verkoop

Doe een bod van

211.000 €

Verkoop informatie

Afgesloten verkoop
Logo van partner Biddit

Startdatum: 12/01/2026 14:00

Einddatum: 20/01/2026 14:00

Geen bod: 1.000 €

De fiche bekijken op Biddit.be

Verkocht door de notaris Notaris Katherine De Wispelaere

Bezoekgegevens

elke dinsdag van 10u-12u en elke zaterdag van 12u-14u vanaf dinsdag 16/12 tem zaterdag 17/1/2026.

Virtueel bezoek

Ontdek het vastgoed tijdens een virtueel bezoek

Nu bezoeken