Presentatiebeeld van het pand n° 296025

In verband met dit goed

Referentie: 296025


VERKOOP VIA BIEDING ONDER GESLOTEN OMSLAG

OCMW van Turnhout zal verkopen uit de hand volgens de procedure van BIEDING ONDER GESLOTEN OMSLAG:

ERFPACHTRECHT VAN DE WONING TE TURNHOUT, BEGIJNHOF 5

MINIMUMBOD: 53.100 EUR

Kenmerk: Een woonhuis op en met grond en alle verdere aanhorigheden gestaan en gelegen te Turnhout, Begijnhof 5, sectie Q nummer 0522G P0000 met een grondoppervlakte van vijfennegentig centiare (95ca).
K.I.: 225 euro.
Maandelijkse canon: 225 euro.
De woning is geklasseerd als monument en het Begijnhof is in zijn geheel UNESCO-werelderfgoed en erkend en geklasseerd als Landschap.
Gelegen in Wche; Gvg; Gmo.; Gvv.; Gvkr.
EPC: 458 kWh/m² label E (certificaatnummer 20240324-0003187358-RES-1).

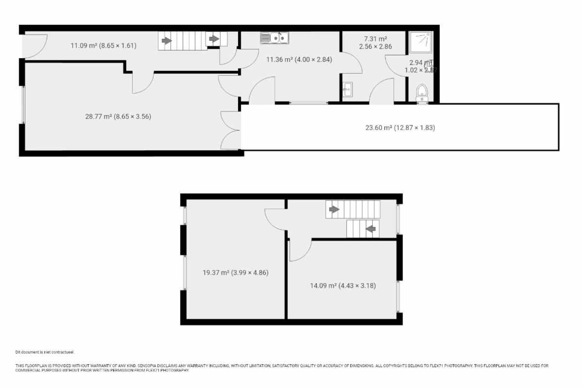
Indeling:
GLV: inkom, living, keuken, berging, badkamer.
Eerste verdieping: trappenhal, 2 slaapkamers.
Tweede verdieping: Zolderruimte
Tevens kelder.

Beschikbaar: Vanaf het verlijden van de notariële akte.

Om meer te weten omtrent de aktekosten dient u contact op te nemen met het notariaat aangezien de "rekenmodule" niet van toepassing is bij erfpachten.

Bezichtiging: Na telefonische afspraak met Tine Meeus op nummer 0471/67.16.63 of tine.meeus@turnhout.be.

Bieding: Het ondertekende aankoopaanbod met de verkoopsvoorwaarden moet bij wijze van aangetekende zending of afgifte tegen ontvangstbewijs op het notariskantoor worden bezorgd onder gesloten omslag op het kantoor van Szabó notarissen te Turnhout, Kempenlaan 2 ten laatste op DINSDAG 2 JUNI 2026 VÓÓR 12.00 UUR.

Opening van de biedingen: DINSDAG 2 JUNI 2026 OM 14.00 UUR op het kantoor Szabó Notarissen te Turnhout.

Aankoopaanbod en verkoopsvoorwaarden te verkrijgen via aanvraag op johnny@szabonotarissen.be of tine.meeus@turnhout.be, of in het kantoor van Szabó Notarissen te Turnhout, Kempenlaan 2.
BIEDEN en MEER INFORMATIE te vinden via de BIDDIT-site, gelieve de link https://www.biddit.be/nl/catalog/detail/296025 te gebruiken. G score: A P score: A

Algemene informatie

  • Vrij vanafOnmiddellijk
  • PandtypeHuizen
  • verdieping(en)2
  • Kadastraal inkomen225 €
  • Aantal gevels2

Samenstelling

  • 2 slaapkamers
  • 1 badkamer
  • 1 WC
  • Zolder
  • Kelder
  • Woonkamer

Bijkomende informatie

  • StaatGoed
  • Type verwarmingGas

Gebouw en tuin gegevens

  • Oppervlakte kadaster95m2

Energiegegevens

  • Energiescore (kengetal) van het EPC458 kWh/m2
  • RF-Energie labelE De wettelijke verplichting tot renovatie is mogelijks van toepassing op dit goed.
  • Unieke code van het EPC-certificaat20240324-0003187358-RES-1

Stedelijke informatie

  • De meest recente stedelijke bestemming van het pand met de benamingen gebruikt in het register met plannenWoongebied met culturele, historische en/of esthetische waarde

Naam van de voorkooprechthebbende overheid (bij prioriteit)

  • Het onroerend goed is beschermd of opgenomen in een vastgestelde inventarisAndere
  • Ander type van inventarisDe woning is geklasseerd als monument en het Begijnhof is in zijn geheel UNESCO-werelderfgoed en erkend en geklasseerd als Landschap.

Uit de hand te koop

Bieden vanaf

53.100 €

Verkocht door de notaris SZABO notarissen

Heeft u een vraag over dit pand of wenst u een bezoek in te plannen? Neem contact op met de notaris van de verkoper.

Virtueel bezoek

Ontdek het vastgoed tijdens een virtueel bezoek

Nu bezoeken