Presentatiebeeld van het pand n° 291613

In verband met dit goed

Referentie: 291613


In een rustige en groene woonomgeving. Op een perceel van 1.000 m².
Biedt een aangename woonindeling en tal van mogelijkheden voor wie op zoek is naar ruimte en comfort.
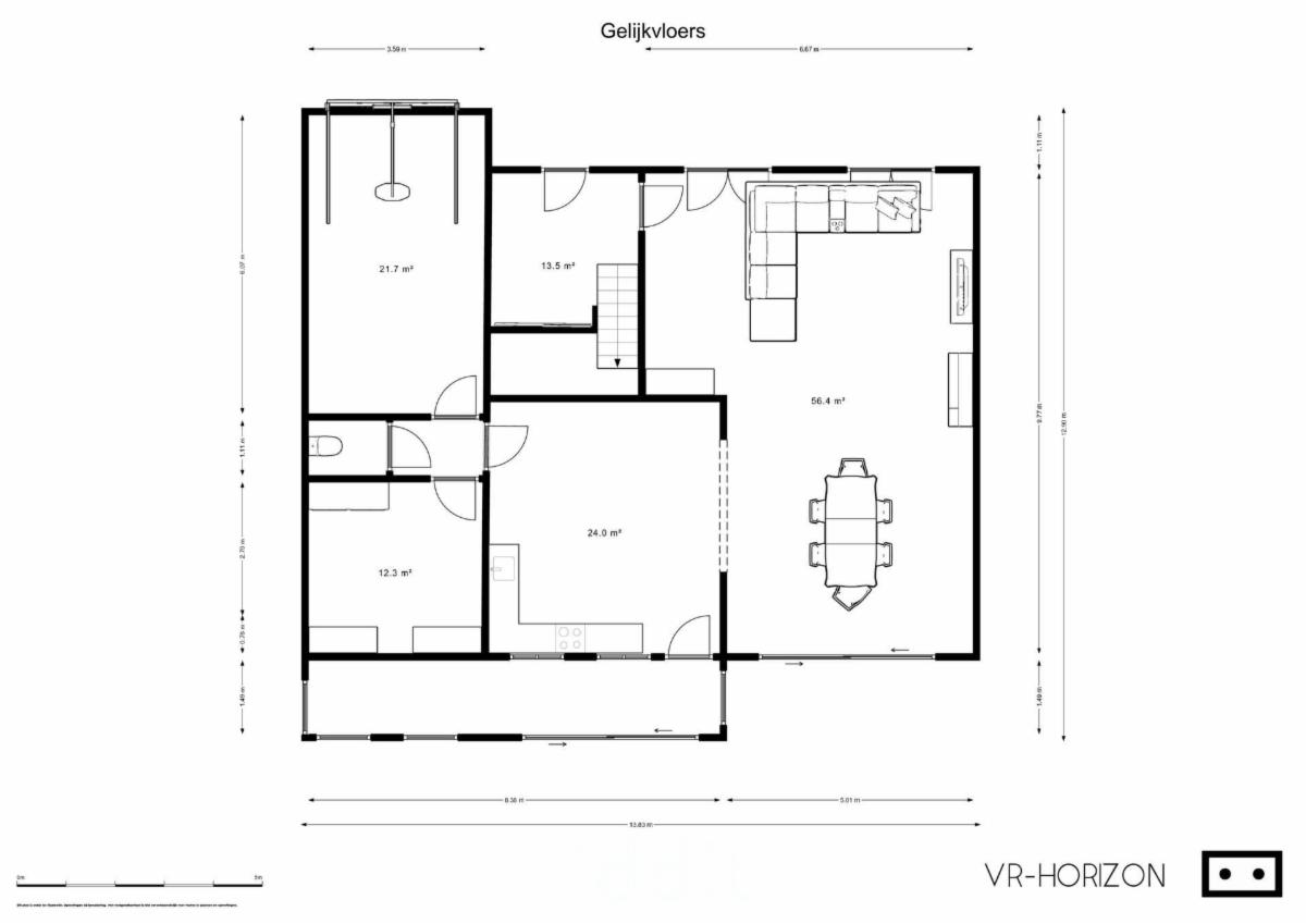
Via de inkomhal komt men in de lichtrijke leefruimte met eet- en zitplaats, die aansluit op de open ingerichte keuken. Dit zorgt voor een open en aangename leefomgeving. Op het gelijkvloers bevindt zich een apart toilet, een bergplaats, een inpandige garage en een veranda met zicht op de tuin. De tuin is ruim en biedt rust en privacy. Achteraan het perceel is er bovendien een vrijstaande garage met aansluitend een houten tuinhuis, ideaal als extra bergruimte of hobbyruimte.
Op de eerste verdieping zijn 4 volwaardige slaapkamers en een badkamer uitgerust met een ligbad en een toilet. Daarnaast beschikt de woning over een zolderverdieping, bereikbaar via een schuiftrap, die kan dienen als bijkomende opslagruimte.
Deze vrijstaande woning combineert een gunstige ligging met een ruim perceel en een praktische indeling, en vormt een interessante opportuniteit voor gezinnen of kopers die op zoek zijn naar een woning met potentieel. G score: A P score: B

Algemene informatie

  • Vrij vanafAndere
  • Gebouw1984
  • PandtypeHuizen
  • verdieping(en)3
  • Oppervlakte van het woongedeelte290m2
  • Kadastraal inkomen2.226 €
  • Aantal gevels4

Samenstelling

  • 4 slaapkamers
  • 1 badkamer
  • 2 WC
  • Zolder
  • Veranda
  • Ingerichte keuken
  • Eetkamer
  • Woonkamer

Bijkomende informatie

  • StaatGoed
  • Aantal parkeerplaatsen binnen1

Gebouw en tuin gegevens

  • Tuin
  • Oppervlakte kadaster1000m2

Energiegegevens

  • Energiescore (kengetal) van het EPC278 kWh/m2
  • RF-Energie labelC
  • Unieke code van het EPC-certificaat20241105-0003436730-RES-1

Stedelijke informatie

  • Stedenbouwkundige vergunning
  • De meest recente stedelijke bestemming van het pand met de benamingen gebruikt in het register met plannenWoongebied

Online verkoop

Doe een bod van

435.000 €

Verkoop informatie

Afgesloten verkoop
Logo van partner Biddit

Startdatum: 16/02/2026 10:00

Einddatum: 24/02/2026 10:00

Geen bod: 1.000 €

De fiche bekijken op Biddit.be

Verkocht door de notaris AGORA NOTARISSEN

Bezoekgegevens

op zaterdag 24/1, 31/1, 7/2, 14/2, 21/2 van 10u tot 12u.

Virtueel bezoek

Ontdek het vastgoed tijdens een virtueel bezoek

Nu bezoeken