Presentatiebeeld van het pand n° 293594

In verband met dit goed

Referentie: 293594


OPEN BEBOUWING met GARAGE en TUIN, gekadastreerd wijk A, nummers 2/F/2 P0000 en 19/N P0000, groot 17a 56ca, omvat:
- kelder,
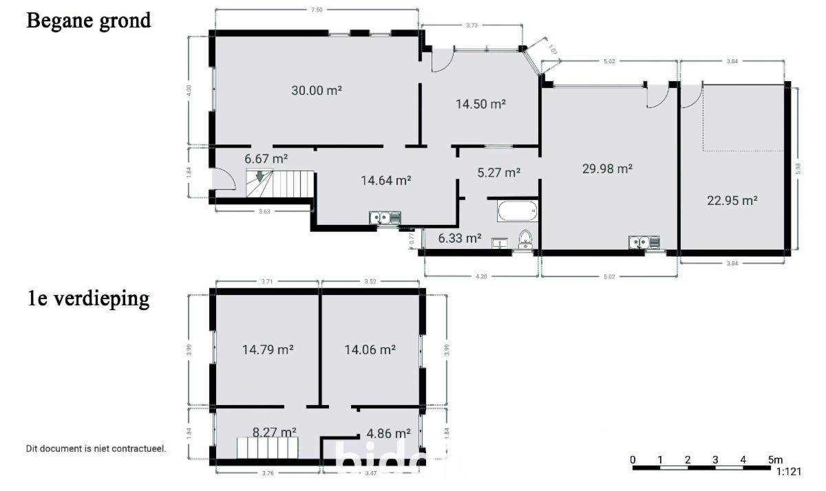
- gelijkvloers: inkomhal, leefruimte, keuken, badkamer met WC, veranda, berging, berging/slaapkamer, garage en tuin,
- verdieping: traphal, 3 slaapkamers.

Deels woongebied (eerste 50 meter) en deels agrarisch gebied (achterliggende grond) – Vg (gebouwd voor 22 april 1962) - Gmo - Gvv - Vrij van gebruik – Geen voorkooprecht - K.I. 526 EUR – EPC 608 kWh/m² (energielabel F).

Nutsvoorzieningen: CV-stookolie, elektriciteiet, waterl., riolering. G score: A P score: A

Algemene informatie

  • Vrij vanafOnmiddellijk
  • Gebouw1955
  • PandtypeHuizen
  • verdieping(en)2
  • Oppervlakte van het woongedeelte165m2
  • Kadastraal inkomen526 €
  • Aantal gevels4

Samenstelling

  • 3 slaapkamers
  • 1 badkamer
  • 1 WC
  • Kelder
  • Veranda
  • Woonkamer

Bijkomende informatie

  • OmgevingLandelijk
  • StaatTe renoveren
  • Type verwarmingMazout
  • Aantal parkeerplaatsen binnen1

Gebouw en tuin gegevens

  • Tuin
  • Oppervlakte kadaster1756m2

Energiegegevens

  • Centrale verwarming
  • Energiescore (kengetal) van het EPC608 kWh/m2
  • RF-Energie labelF De wettelijke verplichting tot renovatie is mogelijks van toepassing op dit goed.
  • Unieke code van het EPC-certificaat20250524-00003609536-RES-1

Stedelijke informatie

  • De meest recente stedelijke bestemming van het pand met de benamingen gebruikt in het register met plannenDeels woongebied en deels agrarisch gebied

Documenten en bijlagen

Online verkoop

Doe een bod van

224.000 €

Verkoop informatie

Logo van partner Biddit

Startdatum: 14/04/2026 14:00

Einddatum: 22/04/2026 14:00

Geen bod: 1.000 €

De fiche bekijken op Biddit.be

Verkocht door de notaris Michiels, Stroeykens & Pelgrims

Bezoekgegevens

Elke zaterdag van 14u-16u, en dit vanaf zaterdag 14 maart 2026 tot en met zaterdag 11 april 2026

Virtueel bezoek

Ontdek het vastgoed tijdens een virtueel bezoek

Nu bezoeken