Presentatiebeeld van het pand n° 289508

In verband met dit goed

Referentie: 289508


Vrijwillige openbare verkoop (BIDDIT) van een juweel van het Vlaamse erfgoed dat gerestaureerd moet worden.
Indeling: 1 garage, 3 slaapkamers, 2 badkamers.
KI € 1202
EPC: 1073 kWh/(m²jaar), label F.
Elektriciteit niet-conform.
Niet-asbestveilig.
VRIJ VANAF: De koper zal het genot en het vrije gebruik van het verkochte goed verkrijgen nadat hij de prijs, de kosten en alle bijkomende lasten in hoofdsom en eventuele interesten heeft betaald.
Blanco bodematt. ZV. Lands. waardevol agr. gebied/parkgebied/natuurgebied. Ongeschikt/onbewoonbaar, Habitatrichtlijn, VEN- en IVON-gebied, Gmo, vkr, Gvv. Erfgoed. P-score: A en D; G-score A en onbekend. Erfdienstbaarheden en bijzondere bepalingen. Er is op de grond een begin van constructie/kelder gerealiseerd welke mogelijks zal moeten geregulariseerd worden of verwijderd worden.
Op slechts 30 minuten van Brussel en 15 km van Gent opent “La Petite Maison du Faisan”
(Fazantenhuisje)", gebouwd in 1912, zijn deuren voor u open. Het huis staat op de lijst vastgesteld bouwkundig erfgoed en maakt deel uit van de geschiedenis van het domein van het kasteel Verschaffelt (1870) als woning van de
jager en straalt een tijdloze charme uit.
De grote tuin, op het zuiden gelegen, strekt zich uit tot aan een privé-vijver, die regelmatig wordt bezocht door wilde dieren (ganzen, reigers, ijsvogels, enz.), in een landschap dat rechtstreeks uit de schilderijen van
de school van Sint-Martens-Latem lijkt te komen. Hier biedt elk seizoen een uniek licht en een unieke sfeer.
Tussen het huis en het zwembad heeft een eerdere constructie vochtproblemen veroorzaakt
na een periode van leegstand. Met een aangepaste restauratie biedt Fazantenhuisje een
uitzonderlijk potentieel: gezinswoning, creatieve plek of inspirerende retraite. Meer dan een
woning, het is een echt levensproject in het hart van de natuur en de geschiedenis.
Opvallende punten:
• Huis geklasseerd als Vlaams erfgoed
• Ruim terrein met privé-vijver
• Tuin op het zuiden, ongerepte en niet-bebouwbare omgeving, zonder buren
• Snelle bereikbaarheid: op enkele minuten lopen van het station van Moortsele, met gemakkelijke verbindingen naar de snelwegen, 15 km van Gent, 30 min. van Brussel (E40)
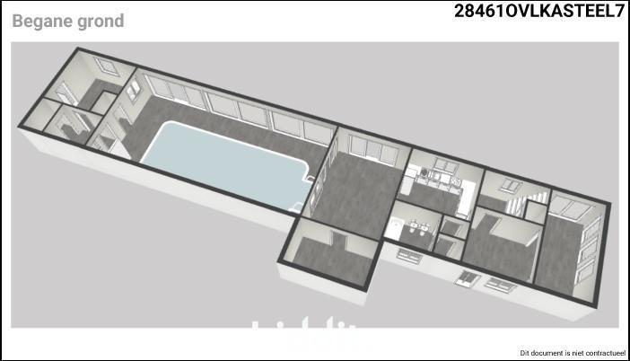
• Recent binnenzwembad
• Zeldzame kans om een historisch pand te restaureren
BEZOEK: op zaterdag 1/11, 8/11, 15/11, 22/11, 29/11, 6/12 van 14u-17u en zondag 2/11, 9/11, 16/11, 23/11, 30/11, 7/12 van 14u-17u G score: A P score: D

Algemene informatie

  • Vrij vanafBij de akte
  • PandtypeHuizen
  • verdieping(en)1
  • Kadastraal inkomen1.202 €
  • Aantal gevels4

Samenstelling

  • 3 slaapkamers
  • 2 badkamers
  • 3 WC

Bijkomende informatie

  • StaatTe renoveren
  • Aantal parkeerplaatsen binnen1

Gebouw en tuin gegevens

  • Oppervlakte kadaster9209m2

Energiegegevens

  • Energiescore (kengetal) van het EPC1.073 kWh/m2
  • RF-Energie labelF De wettelijke verplichting tot renovatie is mogelijks van toepassing op dit goed.
  • Unieke code van het EPC-certificaat20250512-0003589275-RES-1

Stedelijke informatie

  • Stedenbouwkundige vergunning
  • De meest recente stedelijke bestemming van het pand met de benamingen gebruikt in het register met plannenLandschappelijk waardevol agrarisch gebied, Parkgebied, Natuurgebied

Documenten en bijlagen

Online verkoop

Doe een bod van

300.000 €

Verkoop informatie

Logo van partner Biddit

Startdatum: 03/12/2025 14:00

Einddatum: 11/12/2025 14:00

Geen bod: 1.000 €

De fiche bekijken op Biddit.be

Verkocht door de notaris Henrist, De Mulder & Bultereys, Geassocieerde Notarissen

Bezoekgegevens

op zaterdag 1/11, 8/11, 15/11, 22/11, 29/11, 6/12 van 14u-17u en zondag 2/11, 9/11, 16/11, 23/11, 30/11, 7/12 van 14u-17u

Virtueel bezoek

Ontdek het vastgoed tijdens een virtueel bezoek

Nu bezoeken