Presentatiebeeld van het pand n° 287955

In verband met dit goed

Referentie: 287955


Halfopen-bebouwing.
Groottte 16a 99ca - Bouwjaar 1966 - KI 508 € - deels Wg-deels Ag-Vg-Gvv-Gmo-Gvkr. P en G score (ivm. waterbeleid) is A - EPC score (ivm. energiewaarde) is 932 kWh/m² jaar - Asbestveilig - Elektrische installatie is niet conform.
De verkoper verklaart dat er hem voor het verkochte goed geen bouwovertredingen of stedenbouwkundige inbreuken bekend zijn en dat het gebruik ervan correct verloopt zonder betwisting, behoudens hetgeen hiena gemeld.
De dienst omgeving van de gemeente Balen liet evenwel per mail gericht aan ondergetekende notaris van 14 maart 2025 weten hetgeen volgt: “- Er zijn geen bouwovertredingen gekend. Er is geen bouwvergunning afgeleverd voor deze woning. Met de huidige woning kunnen er enkel onderhouds- en instandhoudingswerken* uitgevoerd worden. Het gebouw is constructief 1 geheel met de woning v/d buur (huisnr 50). Een herbouw kan bijgevolg enkel samen met buur (huisnr 50).
Onderhoudswerken zijn werken, andere dan stabiliteitswerken, die het gebruik van een constructie voor de toekomst ongewijzigd veilig stellen door het bijwerken, herstellen of vervangen van geërodeerde of versleten materialen of onderdelen.
Enkele voorbeelden van onderhoudswerken:
- het vervangen van beschadigd pleisterwerk
- het herstellen van kapotte verhardingen
- het vervangen van kepers, panlatten en leien op het dak door nieuwe kepers, panlatten en leien, zonder vervanging van de dragende balken (het dakgebinte)
- het schilderen en kaleien van gevels
- het isoleren langs de binnenkant van de woning.
BEZOEK: op zaterdag 8/11, 15/11, 22/11, 29/11, 6/12 van 10u-12u. G score: A P score: A

Algemene informatie

  • Vrij vanafTe bepalen
  • Gebouw1966
  • PandtypeHuizen
  • verdieping(en)1
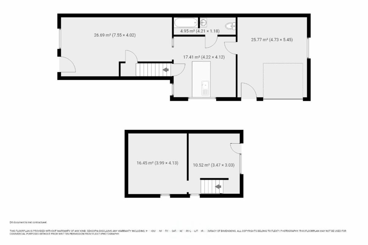
  • Oppervlakte van het woongedeelte125m2
  • Kadastraal inkomen508 €
  • Aantal gevels3

Samenstelling

  • 2 slaapkamers
  • 1 badkamer
  • 1 WC

Bijkomende informatie

  • StaatTe renoveren
  • Type verwarmingMazout
  • Aantal parkeerplaatsen binnen1

Gebouw en tuin gegevens

  • Oppervlakte kadaster1699m2

Energiegegevens

  • Energiescore (kengetal) van het EPC932 kWh/m2
  • RF-Energie labelF De wettelijke verplichting tot renovatie is mogelijks van toepassing op dit goed.
  • Unieke code van het EPC-certificaat20220813-0002655464-RES-1

Stedelijke informatie

  • De meest recente stedelijke bestemming van het pand met de benamingen gebruikt in het register met plannenDeels woongebied en deels agrarisch gebied

Online verkoop

Doe een bod van

45.000 €

Verkoop informatie

Logo van partner Biddit

Startdatum: 02/12/2025 10:00

Einddatum: 10/12/2025 10:00

Geen bod: 1.000 €

De fiche bekijken op Biddit.be

Verkocht door de notaris Koen Vermeulen, Marijke Mellaerts & Valerie Maussen, geassocieerde not

Bezoekgegevens

op zaterdag 8/11, 15/11, 22/11, 29/11, 6/12 van 10u-12u.

Virtueel bezoek

Ontdek het vastgoed tijdens een virtueel bezoek

Nu bezoeken