Presentatiebeeld van het pand n° 289810

In verband met dit goed

Referentie: 289810


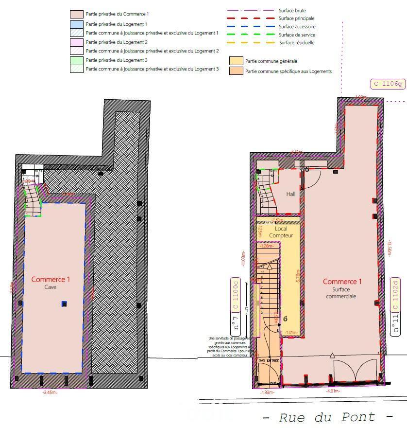
Au sein d'une maison de maître et de caractère totalement rénovée, avec un réel souci du détail et du respect des matériaux, très bel espace à usage de commerce ou encore de profession libérale. Ce rez-de-chaussée, avec sa belle vitrine et sa magnifique porte d'entrée, est composé d'un espace brut à aménager selon vos goûts et vos besoins ainsi que d'une cave voutée au sous-sol. Entrée indépendante. Un bien d'exception dans un quartier historique en plein essor et proche de toutes les commodités.

Algemene informatie

  • Vrij vanafBij de akte
  • Gebouw1850
  • PandtypeHandelspanden
  • Aantal gevels1

Samenstelling

  • Kelder
  • Oppervlakte kelder24m2
  • Oppervlakte showroom45m2

Bijkomende informatie

  • OmgevingStedelijk
  • StaatGerenoveerd

Gebouw en tuin gegevens

  • Oppervlakte kadaster72m2

Faciliteit gegevens

  • Nabijgelegen bus
  • Nabijgelegen tram
  • Nabijgelegen winkels
  • Scholen
  • Autoweg
  • Afstand tot school500m
  • Afstand tot bushalte100m
  • Afstand tot handelszaken100m
  • Afstand tot tramhalte100m
  • Afstand tot autoweg1000m

Energiegegevens

  • Aansluiting aan de riolering

Financiële gegevens

  • Kadastraal inkomen te bepalen

Stedelijke informatie

  • Stedenbouwkundige vergunning
  • Meest recente stedenbouwkundige bestemmingWoongebied
  • Datum stedenbouwkundige vergunning12/06/2020
  • Nr. stedenbouwkundige vergunningPU/88682 C

Naam van de voorkooprechthebbende overheid (bij prioriteit)

  • Procedure bescherming van het erfgoed
  • Ingeschreven op de bewaar- of beschermingslijst erfgoedJa

Online verkoop

Doe een bod van

80.000 €

Verkoop informatie

Afgesloten verkoop
Logo van partner Biddit

Startdatum: 03/12/2025 13:00

Einddatum: 11/12/2025 13:00

Geen bod: 1.000 €

De fiche bekijken op Biddit.be

Verkocht door de notaris Philippe DUSART, société notariale

Bezoekgegevens

Pour toute visite, nous vous prions de prendre contact avec l'étude au 04/230.25.30.