Presentatiebeeld van het pand n° 288334

In verband met dit goed

Referentie: 288334


Située à Stavelot, en surplomb du centre-ville et de son abbaye, cette vaste propriété offre un cadre de vie exceptionnel, au calme absolu, au fond d’une voie sans issue et entourée de verdure. L’accès se fait par un portail et une longue allée privative garantissant intimité et tranquillité.

Érigée sur un terrain d’environ 4000 m², la villa, majoritairement de plain-pied, développe de très beaux volumes et offre de nombreuses possibilités d’aménagement : habitation spacieuse unifamiliale, usage bi-familial, ou encore projet touristique (sous réserve d’autorisation).

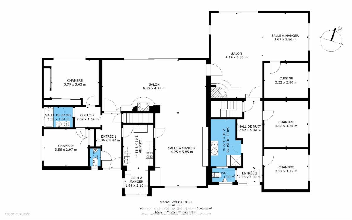
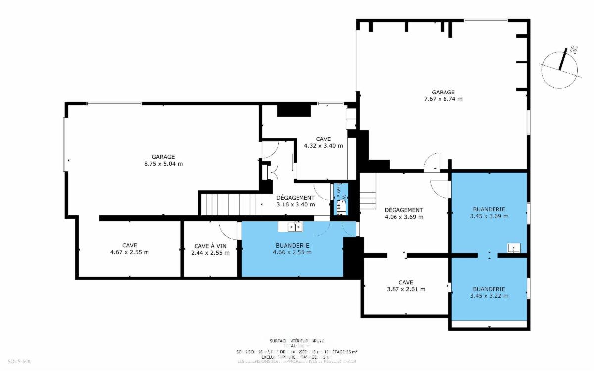
Initialement composée de deux habitations réunies, elle propose aujourd’hui de belles pièces de vie lumineuses, quatre chambres, un vaste sous-sol avec grands garages et caves, ainsi que trois chambres potentielles supplémentaires sous toiture.

Le bien est structurellement en bon état mais nécessite des travaux de rafraîchissement. Il constitue une opportunité rare pour qui cherche de l’espace, du calme, et un fort potentiel.

Vente publique en ligne du 27 octobre au 4 novembre 2025.
Signature du procès-verbal d’adjudication prévue le 17 novembre à 17h.

Informations, dossier complet et modalités de participation disponibles sur Biddit.

!!! Visites sans rendez-vous les 11/10 de 14h30 à 15h30, 16 et 30/10 de 16h30 à 18h !!!

Algemene informatie

  • Vrij vanafOnmiddellijk
  • Gebouw1974
  • PandtypeHuizen
  • verdieping(en)1
  • Oppervlakte van het woongedeelte290m2
  • Kadastraal inkomen1.758 €
  • Aantal gevels4

Samenstelling

  • 7 slaapkamers
  • 2 badkamers
  • 2 WC
  • Zolder
  • Kelder
  • Washok
  • Woonkamer
  • Zolder toegankelijk via vaste trap
  • Geïsoleerde zolder
  • Oppervlakte slaapkamer 119m2
  • Oppervlakte slaapkamer 215m2
  • Oppervlakte slaapkamer 314m2
  • Oppervlakte slaapkamer 414m2
  • Oppervlakte slaapkamer 513m2
  • Oppervlakte woonkamer100m2
  • Oppervlakte kelder105m2
  • Aantal wooneenheden2

Bijkomende informatie

  • Teledistributie
  • Terras
  • Deurtelefoon
  • OmgevingLandelijk
  • StaatOp te frissen
  • Type verwarmingMazout
  • Aantal parkeerplaatsen binnen4
  • Aantal parkeerplaatsen buiten4

Gebouw en tuin gegevens

  • Tuin
  • Bos
  • Vlakke grond
  • Oppervlakte kadaster3967m2

Faciliteit gegevens

  • Nabijgelegen bus
  • Nabijgelegen winkels
  • Scholen
  • Autoweg
  • Afstand tot school1000m
  • Afstand tot bushalte1000m
  • Afstand tot handelszaken1000m
  • Afstand tot autoweg5000m

Energiegegevens

  • Centrale verwarming
  • Dubbele beglazing
  • Stookolie-, gas- of andere tank
  • Dichtheidstest
  • Energie labelEnergielabel van het pand
  • Conformiteitsattest van de elektrische installatieJa, niet gelijkvorming
  • Unieke code van het EPC-certificaat20250505005074
  • Primair specifiek energieverbruik391 kWh/m2/an
  • Primair theoretisch energieverbruik114.274 kWh/an
  • Conformiteitsattest van de stookolietankJa, niet gelijkvorming
  • Inhoud van de stookolietank4.000L

Stedelijke informatie

  • Meest recente stedenbouwkundige bestemmingWoongebied met landelijk karakter

Naam van de voorkooprechthebbende overheid (bij prioriteit)

  • Ingeschreven op de bewaar- of beschermingslijst erfgoedNeen

Documenten van de online verkoop en bijlagen

Online verkoop

Doe een bod van

200.000 €

Verkoop informatie

Afgesloten verkoop
Logo van partner Biddit

Startdatum: 27/10/2025 11:00

Einddatum: 04/11/2025 11:00

Geen bod: 1.000 €

De fiche bekijken op Biddit.be

Verkocht door de notaris NOTAIRE THIBAULT DENOTTE

Bezoekgegevens

Visites sans rendez-vous les 11/10 de 14h30 à 15h30, 16/10 et 30/10 de 16h30 à 18h

Infosessie

Pour toute question, veuillez contacter notre collaborateur au 0486/17.52.08 entre 13h et 17h.