Presentatiebeeld van het pand n° 288332

In verband met dit goed

Referentie: 288332


Gelegen in een rustige woonwijk.
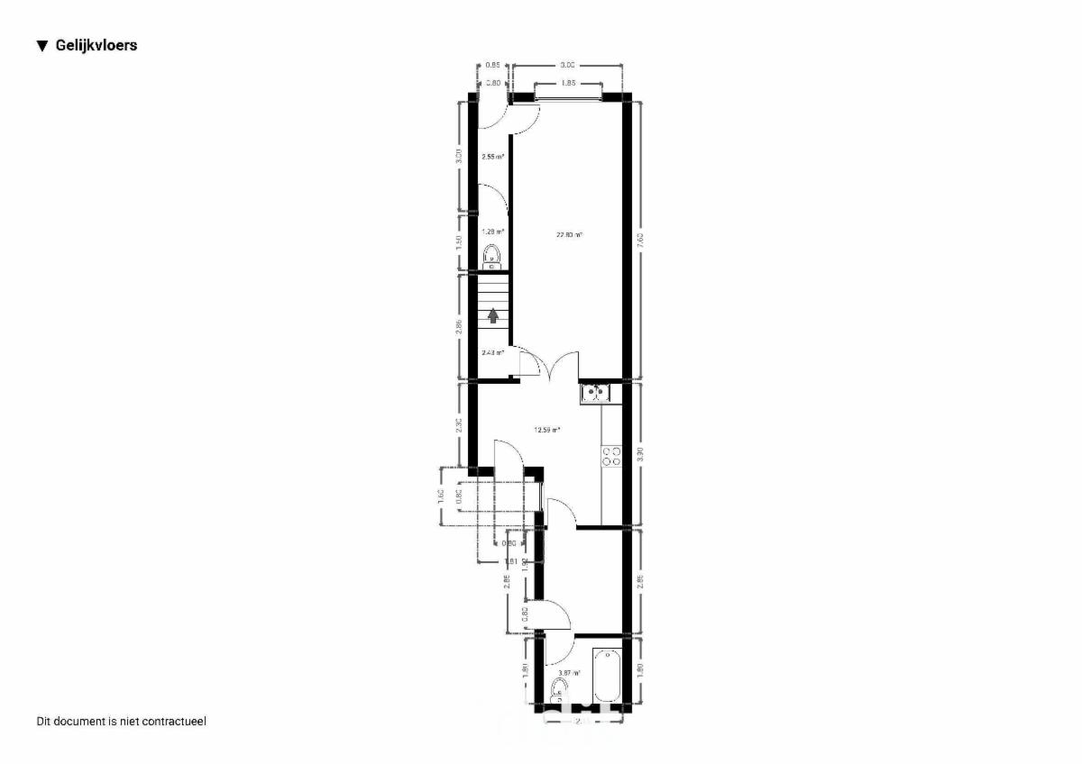
Indeling:
- gelijkvloers: inkomhal, leefruimte, keuken, wasplaats, afzonderlijk wc, badkamer;
- 1e verdieping: 2 slaapkamers.
Wug, Gvg, Gmo, Gvkr, Gvv. Renovatieplicht.
BEZOEK: zonder afspr. elke woensdag van 17u30-19u en zaterdag van 10u-11u30 vanaf woensdag 22/10 tem zaterdag 8/11. G score: B P score: B

Algemene informatie

  • Vrij vanafOnmiddellijk
  • Gebouw1931
  • PandtypeHuizen
  • verdieping(en)1
  • Oppervlakte van het woongedeelte97m2
  • Kadastraal inkomen277 €
  • Aantal gevels3

Samenstelling

  • 2 slaapkamers
  • 1 badkamer
  • 1 WC
  • Washok
  • Woonkamer

Bijkomende informatie

  • StaatTe renoveren

Gebouw en tuin gegevens

  • Tuin
  • Oppervlakte kadaster283m2

Energiegegevens

  • Energiescore (kengetal) van het EPC926 kWh/m2
  • RF-Energie labelF De wettelijke verplichting tot renovatie is mogelijks van toepassing op dit goed.
  • Unieke code van het EPC-certificaat20250707-0003638716-RES-1

Stedelijke informatie

  • De meest recente stedelijke bestemming van het pand met de benamingen gebruikt in het register met plannenWoonuitbreidingsgebied

Online verkoop

Doe een bod van

80.000 €

Verkoop informatie

Afgesloten verkoop
Logo van partner Biddit

Startdatum: 04/11/2025 13:00

Einddatum: 12/11/2025 13:00

Geen bod: 500 €

De fiche bekijken op Biddit.be

Verkocht door de notaris Laurent Liessens, Notaris

Bezoekgegevens

zonder afspr. elke woensdag van 17u30-19u en zaterdag van 10u-11u30 vanaf woensdag 22/10 tem zaterdag 8/11.

Virtueel bezoek

Ontdek het vastgoed tijdens een virtueel bezoek

Nu bezoeken