Presentatiebeeld van het pand n° 289179

In verband met dit goed

Referentie: 289179


In een rustige en groene buurt van Brecht bevindt zich deze vrijstaande woning met vier gevels, gelegen op een mooi perceel van 784 m². De woning biedt tal van mogelijkheden voor wie op zoek is naar een aangename woonomgeving met een goede bereikbaarheid en voldoende buitenruimte.
Woning op en met grond van 784 m²
Vrijstaande woning (4 gevels) met tuin en aanhorigheden. Elektrische installatie conform. EPC-label C – dus geen renovatieverplichting. Niet-asbestveilig. Gelegen in de eerste afdeling van Brecht, sectie M, nummer 20E9 P0000.
Deze eigendom biedt een uitstekende basis voor wie op zoek is naar een degelijk woonhuis in een rustige omgeving, met alle voorzieningen van het centrum van Brecht op korte afstand. Praktisch.
Gvr, Vg, Gmo, Gvkr, Vv.
BEZOEK: op zaterdag 8/11, 15/11, 22/11 van 11u-13u.
Het goed wordt verkocht via het online platform Biddit.be. Bezoek de website en breng uw bod uit vóór de sluitingsdatum. G score: A P score: A

Algemene informatie

  • Vrij vanafOnmiddellijk
  • Gebouw1987
  • PandtypeHuizen
  • verdieping(en)1
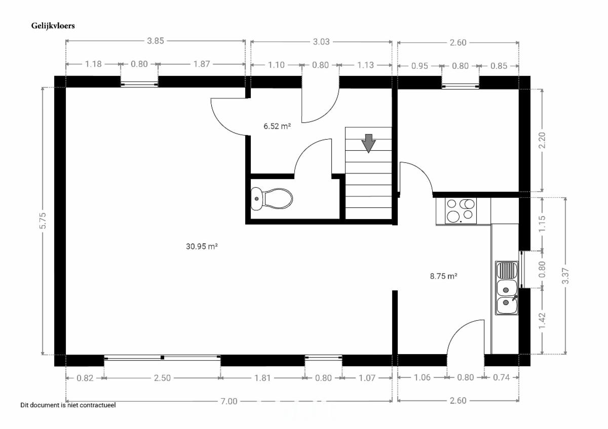
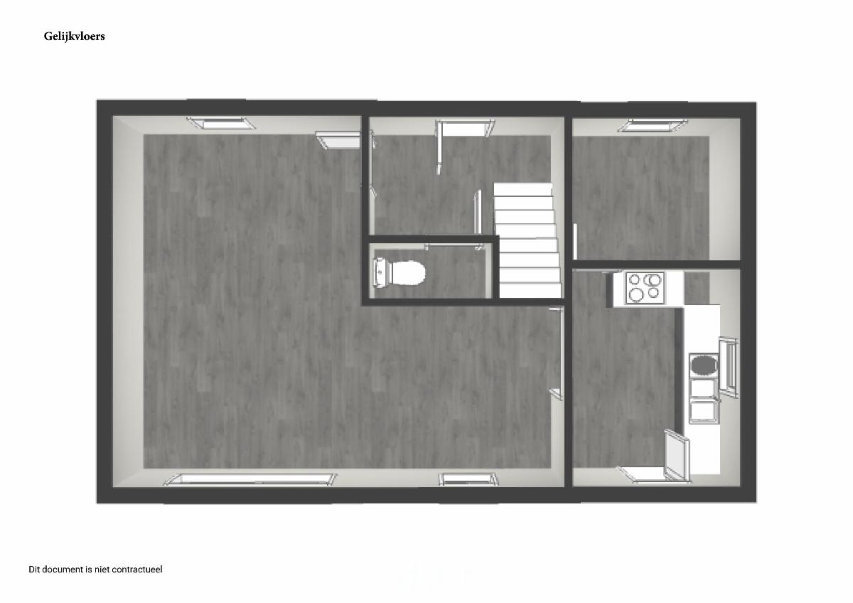
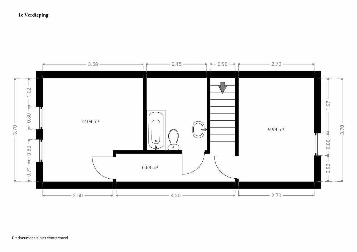
  • Oppervlakte van het woongedeelte103m2
  • Kadastraal inkomen602 €
  • Aantal gevels4

Samenstelling

  • 3 slaapkamers
  • 1 badkamer
  • 2 WC

Bijkomende informatie

  • Type verwarmingGas

Gebouw en tuin gegevens

  • Tuin
  • Oppervlakte kadaster784m2

Energiegegevens

  • Energiescore (kengetal) van het EPC249 kWh/m2
  • RF-Energie labelC
  • Unieke code van het EPC-certificaat20230917-0002990621-RES-2

Stedelijke informatie

  • Verkavelingsvergunning
  • Stedenbouwkundige vergunning
  • De meest recente stedelijke bestemming van het pand met de benamingen gebruikt in het register met plannenGebied voor verblijfsrecreatie

Documenten en bijlagen

Online verkoop

Doe een bod van

240.000 €

Verkoop informatie

Logo van partner Biddit

Startdatum: 17/11/2025 13:00

Einddatum: 25/11/2025 13:00

Geen bod: 1.000 €

De fiche bekijken op Biddit.be

Verkocht door de notaris Van Hove & Aubry

Bezoekgegevens

op zaterdag 8/11, 15/11, 22/11 van 11u-13u.

Virtueel bezoek

Ontdek het vastgoed tijdens een virtueel bezoek

Nu bezoeken