Presentatiebeeld van het pand n° 289178

In verband met dit goed

Referentie: 289178


Charmante vrijstaande woning. Gelegen in een rustige en groene woonwijk te Wuustwezel, biedt tal van mogelijkheden voor wie op zoek is naar een degelijke woning met karakter om te renoveren of te moderniseren.
De woning werd gebouwd in 1954 op een perceel van 600 m² en beschikt over een gunstige oriëntatie met een verzorgde voortuin en oprit.
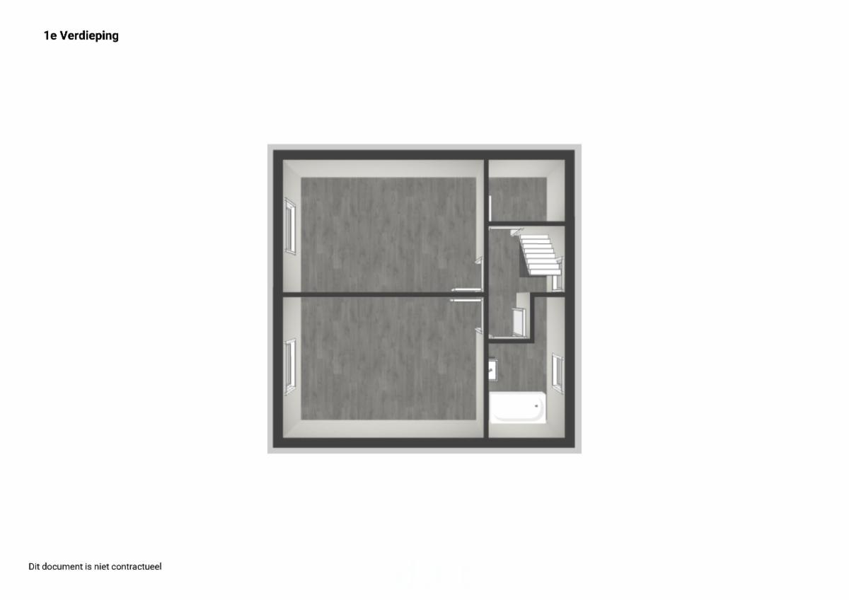
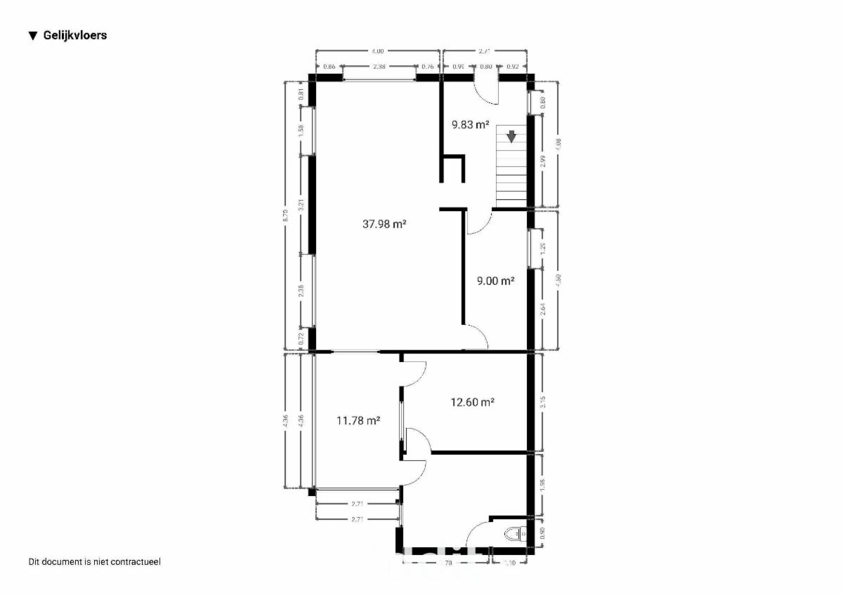
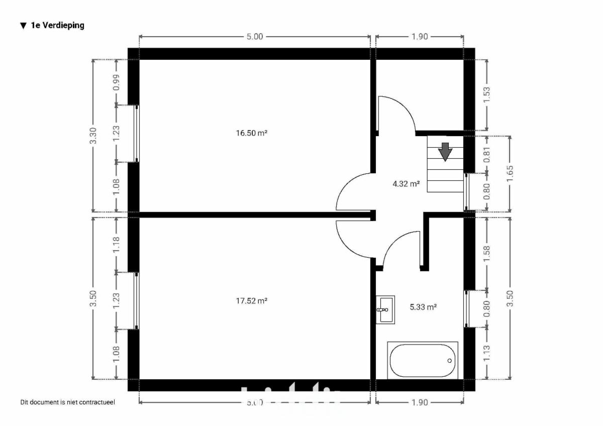
Indeling:
- gelijkvloers: inkomhal met trap naar de bovenverdieping, gezellige woonkamer met eetplaats (ca. 38 m²), functionele keuken (ca. 9 m²), veranda met zicht op de tuin (ca. 12 m²);
- eerste verdieping: 2 ruime slaapkamers (elk ca. 16 à 17 m²), badkamer met ligbad, lavabo en toilet.
Beschikt over een aangename tuin en geniet van een rustige ligging in een residentiële buurt met veel groen. Ideaal voor wie houdt van rust en privacy, maar toch vlot bereikbaar wil blijven.
Wordt verkocht met voorbehoud van een levenslang gebruiks- en bewoningsrecht ten gunste van de huidige eigenaar, geboren in 1930. Dit betekent dat de koper de blote eigendom verkrijgt, maar dat de verkoper het recht behoudt om de woning te blijven gebruiken en bewonen zolang hij leeft.
Belangrijke informatie: Perceeloppervlakte: 600 m². Bouwjaar: 1954. Stedenbouwkundige bestemming: Woongebieden met landelijk karakter. EPC: 737 kWh/m²jaar – label F. Elektrische keuring: niet conform. Asbestattest: Niet-asbestveilig. 5 asbestmaterialen vastgesteld: 3 dienen verwijderd te worden, 2 zorgvuldig beheerd. Overstromingsrapport: Perceelscore A – Gebouwscore A. Niet overstromingsgevoelig, geen risicozone. Verwarming: stookolie. Gebruik en bewoningsrecht: De woning wordt verkocht met een levenslang gebruiks- en bewoningsrecht ten voordele van de huidige eigenaar (95 jaar oud).
BEZOEK: op woensdag 29/10, 12/11, 26/11 van 14u-16u en op zaterdag 8/11, 22/11, 29/11 van 14u-16u.
Voor meer informatie: bezoek en bied mee via www.biddit.be G score: A P score: A

Algemene informatie

  • Vrij vanafAndere
  • Gebouw1954
  • PandtypeHuizen
  • verdieping(en)1
  • Kadastraal inkomen800 €
  • Aantal gevels4

Samenstelling

  • 2 slaapkamers
  • 1 badkamer
  • 1 WC
  • Veranda
  • Eetkamer
  • Woonkamer
  • Oppervlakte slaapkamer 116m2
  • Oppervlakte slaapkamer 217m2
  • Oppervlakte keuken9m2
  • Oppervlakte eetzaal38m2

Bijkomende informatie

  • Type verwarmingMazout

Gebouw en tuin gegevens

  • Tuin
  • Oppervlakte kadaster600m2

Energiegegevens

  • Energiescore (kengetal) van het EPC737 kWh/m2
  • RF-Energie labelF De wettelijke verplichting tot renovatie is mogelijks van toepassing op dit goed.
  • Unieke code van het EPC-certificaat20250727-0003653914-RES-1

Stedelijke informatie

  • Stedenbouwkundige vergunning
  • De meest recente stedelijke bestemming van het pand met de benamingen gebruikt in het register met plannenWoongebied met landelijk karakter

Online verkoop

Doe een bod van

210.000 €

Verkoop informatie

Logo van partner Biddit

Startdatum: 24/11/2025 10:00

Einddatum: 02/12/2025 10:00

Geen bod: 1.000 €

De fiche bekijken op Biddit.be

Verkocht door de notaris NotaLink Geassocieerde Notarissen

Bezoekgegevens

op woensdag 29/10, 12/11, 26/11 van 14u-16u en op zaterdag 8/11, 22/11, 29/11 van 14u-16u.

Virtueel bezoek

Ontdek het vastgoed tijdens een virtueel bezoek

Nu bezoeken