Presentatiebeeld van het pand n° 290496

In verband met dit goed

Referentie: 290496


Stad AARSCHOT
Te renoveren WONING met BERGING, GARAGE en TUIN, Tieltse Baan 43, gekad. wijk C nrs. 158/B/2 en 158/C/2 voor 10 are 50 centiare, omvattende :
Kelder (8 m²).
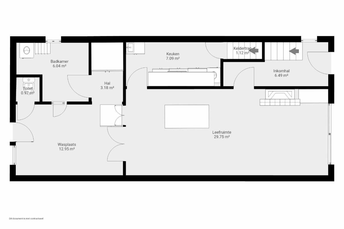
Gelijkvloers (69 m²): inkomhal met trap, leefruimte, keuken, veranda, badkamer, wc, tuin met berging (46 m²) en garage (17 m²).
Verdieping (46 m²) : 4 slaapkamers.
Zolder (eventueel in te richten).

Woongebied met landel. karakter (eerste 50 m.) en agr. gebied (achteraan) – Bouwj. 1952
(vergund) - Bouwverg. voor bijbouwen bergplaats (03/09/1959) en garage (24/03/1966).
Geen dagvaarding – Geen voorkooprecht – Niet overstromingsgevoelig.

Nutsvoorz.: waterl., elektr., riolering, kabelTV, tel., dubb. glas, rolluiken, CV op stookolie.

Bezichtiging : op afspraak.

Vrij van gebruik - EPC 750 kWh/m²/jaar (label F). G score: A P score: A

Algemene informatie

  • Vrij vanafBij de akte
  • Gebouw1952
  • PandtypeHuizen
  • verdieping(en)1
  • Oppervlakte van het woongedeelte129m2
  • Kadastraal inkomen482 €
  • Aantal gevels3

Samenstelling

  • 4 slaapkamers
  • 1 badkamer
  • 1 WC
  • Zolder
  • Kelder
  • Veranda
  • Woonkamer

Bijkomende informatie

  • StaatTe renoveren
  • Type verwarmingMazout
  • Aantal parkeerplaatsen binnen1

Gebouw en tuin gegevens

  • Tuin
  • Oppervlakte kadaster1050m2

Energiegegevens

  • Centrale verwarming
  • Dubbele beglazing
  • Energiescore (kengetal) van het EPC750 kWh/m2
  • RF-Energie labelF De wettelijke verplichting tot renovatie is mogelijks van toepassing op dit goed.
  • Unieke code van het EPC-certificaat20250818-0003666535-RES-1

Stedelijke informatie

  • Stedenbouwkundige vergunning
  • De meest recente stedelijke bestemming van het pand met de benamingen gebruikt in het register met plannenWoongebied met landelijk karakter en agrarisch gebied

Documenten en bijlagen

Uit de hand te koop

Gewenste prijs

240.000 €

Verkocht door de notaris Michiels, Stroeykens & Pelgrims

Heeft u een vraag over dit pand of wenst u een bezoek in te plannen? Neem contact op met de notaris van de verkoper.

Kantoor Not. Michiels, Stroeykens & Pelgrims
Created with Sketch. Created with Sketch.

Bezoekgegevens

Op afspraak

Virtueel bezoek

Ontdek het vastgoed tijdens een virtueel bezoek

Nu bezoeken