Presentatiebeeld van het pand n° 294693

In verband met dit goed

Referentie: 294693


DECKERS NOTARISSEN - Leon Stynenstraat 75B 2000 ANTWERPEN - TEL: 03/233.90.66 – 03/233.76.33 - FAX: 03/234.23.86 - info@deckersnotarissen.be
OPENBARE VERKOPING DOOR NOTARIS Alexander VERBEKE VIA BIDDIT (enkel online bieden, met instelpremie)
ZEER GUNSTIG IN BRECHT-SINT LENAARTS GELEGEN ZEER RUIME VILLA KLEIPIKKER 31
BIEDEN VANAF 455.000 €
INFO:
Voorheen lot 30 van de verkaveling.
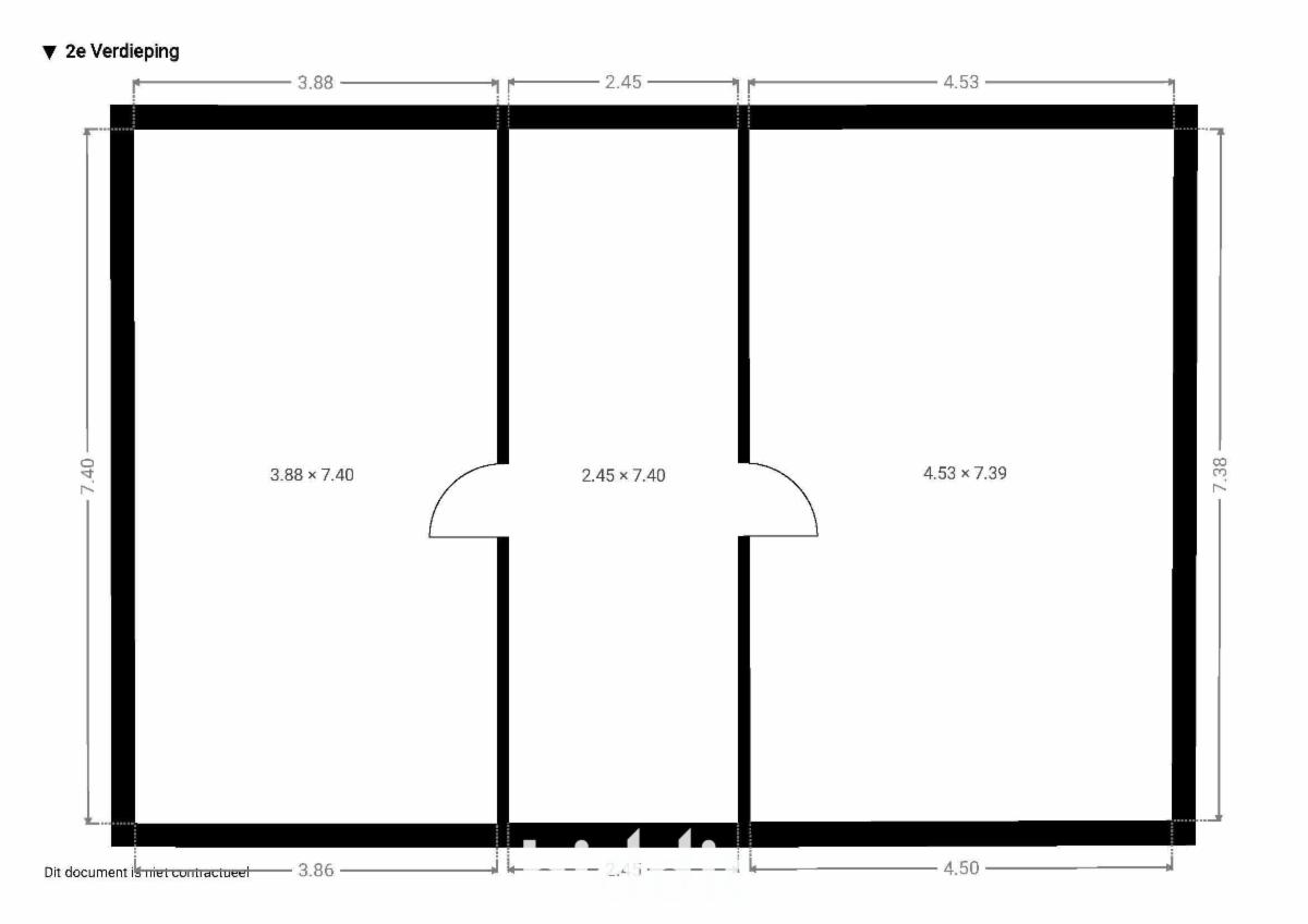
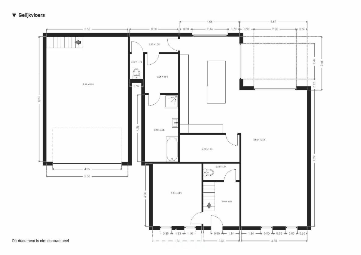
Indeling: Inkomhall met trap, ruime living, open keuken met berging, bureau, overdekt terras, terras, tuin, 6 slaapkamers, 2 badkamers, 3 toiletten. Zeer ruime garage. Veel inbouwkasten voorzien. Kelder.
KI: 1639 €
Oppervlakte perceel: 700m²
Beschikbaar & Ingenottreding: volgens veilvoorwaarden
BEZOEK: zonder afspraak - elke woensdag van 14u-16u en zaterdag van 10u-12u en dit in de periode vanaf 22 april 2026 tot het einde van de biedingsperiode.
EPC: 74 kWh/jaar – Energielabel A
Renovatieplicht: NEE
BODEMATTEST: ZIE OPGELADEN DOCUMENT
Overstromingsrapport: ZIE OPGELADEN DOCUMENT
PLAN VAN PERCEEL: ZIE OPGELADEN DOCUMENT
Stedenbouwkundige informatie; zie opgeladen document
Proces-verbaal van keuring elektriciteit: ZIE OPGELADEN DOCUMENT
Bestuursmaatregelen in het maatregelenregister: nee
BIEDEN en MEER INFORMATIE te vinden via de BIDDIT-site, gelieve de link https://www.biddit.be/nl/catalog/detail/294693 te gebruiken.
Toewijzing op het kantoor van de notaris op 22 mei 2026 om 14u. G score: A P score: A

Algemene informatie

  • Vrij vanafAndere
  • Gebouw2016
  • PandtypeHuizen
  • verdieping(en)2
  • Kadastraal inkomen1.639 €
  • Aantal gevels4

Samenstelling

  • 6 slaapkamers
  • 2 badkamers
  • 3 WC
  • Kelder
  • Kantoor
  • Woonkamer

Bijkomende informatie

  • Terras
  • StaatUitstekend
  • Type verwarmingGas
  • Aantal parkeerplaatsen binnen2

Gebouw en tuin gegevens

  • Tuin
  • Oppervlakte kadaster700m2

Energiegegevens

  • Energiescore (kengetal) van het EPC74 kWh/m2
  • RF-Energie labelA
  • Unieke code van het EPC-certificaat20260323-0003829185-RES-1

Stedelijke informatie

  • Verkavelingsvergunning
  • Stedenbouwkundige vergunning
  • De meest recente stedelijke bestemming van het pand met de benamingen gebruikt in het register met plannenWoongebied

Online verkoop

Doe een bod van

455.000 €

Verkoop informatie

Logo van partner Biddit

Startdatum: 11/05/2026 14:00

Einddatum: 19/05/2026 14:00

Geen bod: 1.000 €

De fiche bekijken op Biddit.be

Verkocht door de notaris DECKERS NOTARISSEN

Bezoekgegevens

zonder afspraak - elke woensdag van 14u-16u en zaterdag van 10u-12u en dit in de periode vanaf 22 april tot het einde van de biedingsperiode

Virtueel bezoek

Ontdek het vastgoed tijdens een virtueel bezoek

Nu bezoeken