Presentatiebeeld van het pand n° 295537

In verband met dit goed

Referentie: 295537


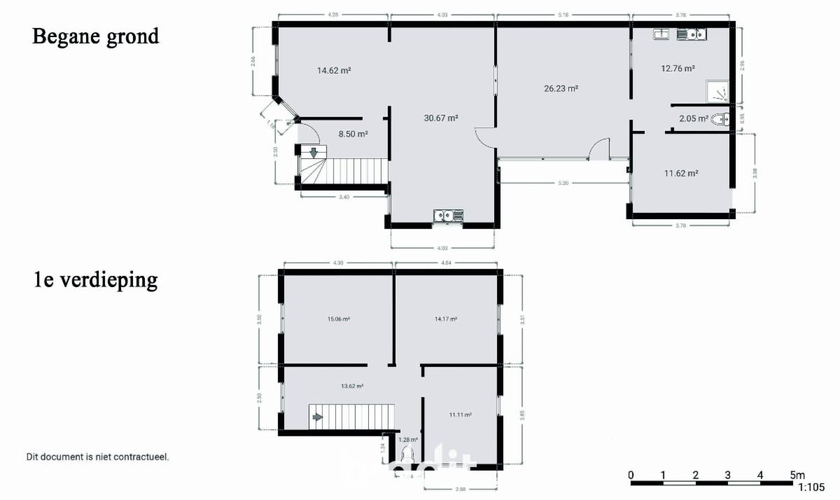
Gelijkvloers: hal, woon- en eetkamer, keuken, veranda, bergruimte, wasruimte.
Verdieping: 3 slaapkamers. Zolder.
Magazijn.

Bestuursmaatregelen in het maatregelenregister: nee.
G score: A P score: C

Algemene informatie

  • Vrij vanafBij de akte
  • Gebouw1954
  • PandtypeHuizen
  • verdieping(en)1
  • Oppervlakte van het woongedeelte217m2
  • Kadastraal inkomen610 €
  • Aantal gevels3

Samenstelling

  • 3 slaapkamers
  • 1 badkamer
  • 1 WC
  • Zolder
  • Veranda
  • Washok
  • Woonkamer

Bijkomende informatie

  • OmgevingResidentieel
  • StaatTe renoveren
  • Type verwarmingGas
  • Aantal parkeerplaatsen binnen1

Gebouw en tuin gegevens

  • Oppervlakte kadaster1074m2

Energiegegevens

  • Centrale verwarming
  • Energiescore (kengetal) van het EPC721 kWh/m2
  • RF-Energie labelF De wettelijke verplichting tot renovatie is mogelijks van toepassing op dit goed.
  • Unieke code van het EPC-certificaat20190719-0002179598-RES-1

Stedelijke informatie

  • Stedenbouwkundige vergunning
  • De meest recente stedelijke bestemming van het pand met de benamingen gebruikt in het register met plannenWoongebied

Documenten en bijlagen

Online verkoop

Doe een bod van

135.000 €

Verkoop informatie

Logo van partner Biddit

Startdatum: 11/05/2026 13:00

Einddatum: 19/05/2026 13:00

Geen bod: 2.000 €

De fiche bekijken op Biddit.be

Verkocht door de notaris BOESMANS Paul & Steven, geassocieerde notarissen

Bezoekgegevens

Van 27/4 tot 18/5: elke maandag van 14u30-16u30 & elke woensdag van 14u30-16u30. Daarbuiten enkel na afspraak met notariskantoor.

Virtueel bezoek

Ontdek het vastgoed tijdens een virtueel bezoek

Nu bezoeken